| 価格 | 成約済 ![]() |
||||||
|---|---|---|---|---|---|---|---|
| 所在地 | 東京都江東区千石3-1-14
この地域周辺の物件を見る |
専有面積 | 65.88u | 間取り | 3LDK (-) | ||
| 交通 | 東京メトロ東西線 東陽町/徒歩12分
|
管理費等 | 13,810円 | 修繕積立金 | 12,850円 | 所在階/階数 | 2階/地上8階建 | 築年月 | 1982年2月築 | バルコニー面積 | 3.24m² |
電話をかける(携帯・PHS可)
0120-033-223
「ホームページを見た」とお伝え下さい。
お問い合わせ番号をお伝えください
RHS-c-8106
| 設備・特徴 |
|
|---|---|
| 物件のおすすめ ポイント |
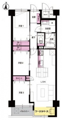
*~*:,_,:*~*:,_,:* …╋ ハイラーク東陽町 ╋… *~*:,_,:*~*:,_,:* .:*:…╋ 交通アクセス ╋…♪.:*:’ 東京メトロ東西線「東陽町」駅徒歩12分 .:*:…╋ 特徴・ポイント ╋…♪.:*:’゜ 2階部分・南向き 各室収納スペース 浴室換気乾燥機付 ワークスペース有 IHクッキングヒーター アフターサービス保証 エレベーター完備 防犯カメラ完備 所在地:東京都江東区千石3-1-14 専有面積:65.88m2 バルコニー面積:3.24m2 部屋数・間取り:3LDK 築年月:昭和57年2月 土地権利:所有権 構造:SRC・RC造地上8階建 所在階:2階部分 総戸数:31戸 管理会社:(株)東急コミュニティー 管理形態:全部委託(日勤) 管理費:13,810円/月 修繕積立金:12,850円/月 分譲会社:東映不動産(株) 施工会社:(株)錢高組 ペット飼育:不可 駐車場:21,000円〜21,000円/月 駐輪場:無償 現況:空室 引渡:相談 :*:…╋ 新規内装リノベーション内容 ╋…♪:* 電気温水器交換 システムキッチン交換 ユニットバス交換 洗面台交換 トイレ交換 全室クロス張替 全フローリング張替 全建具交換 CF張替 下足入れ交換 洗濯水栓器具交換 防水パン交換 スイッチパネル設置 ダウンライト設置 照明器具設置 インターフォン交換 玄関人感センサー設置 ※2021年12月完成 .:*:…╋ Life Information ╋…♪.:*:’ ローソン 約250m サミットスト 約380m 区立仙台堀川公園 約10m 区立川南小学校 約240m 区立深川第四中学校 約610m |
| 採光面 | 南 | 取引態様 | 仲介 |
|---|---|---|---|
| 現況 | 空家 | 引渡し | 相談 |
| 総戸数 | 31戸 | 構造 | SRC造 |
| テラス面積 | - | 専用庭面積 | - |
| 駐車場 | 有:21,000円/月 | 駐輪場 | 有 |
| 建物権利 | 区分所有 | 土地権利 | 所有権の共有 |
| 用途地域 | 準工業地域 - - | 管理態様 | 管理形態:委託(通勤) 管理組合:あり 管理会社:東急コミュニティー |
| 小学校区 | 江東区立川南小学校 (東京都江東区) この学区の他の物件を見る |
中学校区 | 深川第四中学校 (東京都江東区) この学区の他の物件を見る |
| 情報更新日 | 2022年03月27日 | 次回更新日 | 2022年04月10日 |
電話をかける(携帯・PHS可)
0120-033-223
「ホームページを見た」とお伝え下さい。
お問い合わせ番号をお伝えください
RHS-c-8106
| 年利率 | % |
||
|---|---|---|---|
| ボーナス払い | 返済年数 | ||
| 頭金 | 直接入力する | 万円 | |

毎月のご返済額 |
ボーナス(×年2回) |
物件価格成約済 |
電話でお問い合わせ
ゼロネクスト
|
電話をかける 0120-033-223 ※「ホームページを見た」とお伝えください。 |
お問い合わせ番号をお伝えください RHS-c-8106 |
|---|
【仲介手数料が無料になる物件です】
マンション購入時の諸費用を節約する事が可能です。
新規内装リノベーションの綺麗な室内。南向き・陽当り良好・ワークスペース有。アフターサービス保証付です。