| 価格 | 成約済 ![]() |
||||||
|---|---|---|---|---|---|---|---|
| 所在地 | 東京都江東区平野2-16-23
この地域周辺の物件を見る |
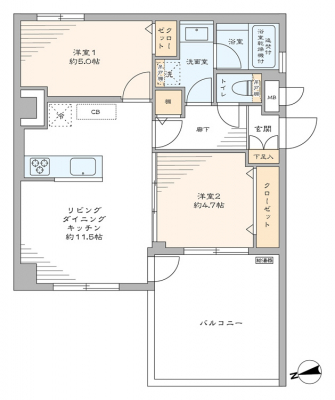
専有面積 | 48.15u | 間取り | 2LDK (LDK11.5/洋室5/洋室4.7) | ||
| 交通 | 東京メトロ半蔵門線 清澄白河/徒歩10分
東京メトロ東西線 門前仲町/徒歩11分 |
管理費等 | 10,100円 | 修繕積立金 | 6,060円 | 所在階/階数 | 2階/地上9階建 | 築年月 | 1979年12月築 | バルコニー面積 | 10.89m² |
電話をかける(携帯・PHS可)
0120-033-223
「ホームページを見た」とお伝え下さい。
お問い合わせ番号をお伝えください
RHS-U-12
| 設備・特徴 |
|
|---|---|
| 物件のおすすめ ポイント |
,:*~*:,_,:*~*:,_,:* …╋ サニーハイム門前仲町 ╋… ,:*~*:,_,:*~*:,_,:* .:*:…╋ 交通アクセス ╋…♪.:*:’ 東京メトロ半蔵門線 清澄白河 駅徒歩10分 都営大江戸線 門前仲町 駅徒歩11分 .:*:…╋ 特徴・ポイント ╋…♪.:*:’゜ 半蔵門線、大江戸線の2駅2路線が利用可 最寄りの「清澄白河」駅周辺はおしゃれなカフェ有 木場公園など複数の公園が徒歩圏内にあり ルーフバルコニー付きで、陽当りと風通しのよい2LDK 駐車場・駐輪場・バイク置場有 間取り:2LDK 専有面積:48.15m2 バルコニー面積:10.89m2 バルコニー向き:西 構造:RC造9階建て 所在階:2階 築年月:1979年12月 総戸数:28戸 土地権利:所有権 用途地域:準工業地域 管理会社:太平ビルサービス 管理形態:一部委託 管理費:10,100円/月 修繕積立金:6,060円/月 駐車場:25,000円/月 駐輪場:500円/月 バイク置場:300円〜1,000円/月 現況:空家 引渡:即可 …╋ 新規内装リノベーション内容 ╋…♪ フローリング新規貼替 給水管・給湯管新規設置 洗面化粧台新規交換 洗浄便座付トイレ新規交換 追焚機能付ユニットバス新規交換 (浴室換気乾燥機付) システムキッチン新規交換 (食器洗浄乾燥機付) TVモニター付インターホン新規設置 壁・天井クロス新規貼替 建具・玄関収納等新規交換 照明器具新規設置 エアコン一基新規設置 .:*:…╋ Life Information ╋…♪.:*:’ オーケー:徒歩5分(357m) ファミリーマート:徒歩3分(167m) スギ薬局:徒歩7分(484m) コーナン:徒歩12分(957m) 区立深川第二中学校:徒歩4分(313m) 区立明治小学校:徒歩9分(648m) 木場親水公園:徒歩9分(669m) |
| 採光面 | 西 | 取引態様 | 仲介 |
|---|---|---|---|
| 現況 | 空家 | 引渡し | 即時 |
| 総戸数 | 28戸 | 構造 | RC造 |
| テラス面積 | - | 専用庭面積 | - |
| 駐車場 | 有 | 駐輪場 | 有 |
| 建物権利 | 区分所有 | 土地権利 | 所有権の共有 |
| 用途地域 | 準工業地域 - - | 管理態様 | 管理形態:委託(巡回) 管理組合:あり 管理会社:太平ビルサービス |
| 小学校区 | 江東区立明治小学校 (東京都江東区) この学区の他の物件を見る |
中学校区 | 深川第二中学校 (東京都江東区) この学区の他の物件を見る |
| 情報更新日 | 2020年03月05日 | 次回更新日 | 2020年03月19日 |
電話をかける(携帯・PHS可)
0120-033-223
「ホームページを見た」とお伝え下さい。
お問い合わせ番号をお伝えください
RHS-U-12
| 年利率 | % |
||
|---|---|---|---|
| ボーナス払い | 返済年数 | ||
| 頭金 | 直接入力する | 万円 | |

毎月のご返済額 |
ボーナス(×年2回) |
物件価格成約済 |
電話でお問い合わせ
ゼロネクスト
|
電話をかける 0120-033-223 ※「ホームページを見た」とお伝えください。 |
お問い合わせ番号をお伝えください RHS-U-12 |
|---|
【仲介手数料が無料になる物件です】
マンション購入時の諸費用を節約する事が可能です。
新規内装リノベーション済の綺麗な室内、ルーフバルコニー付き、陽当り・通風良好の物件です。