【仲介手数料無料】スカイパーク多摩川 成約済 東京都大田区羽田4-3-3の中古マンション||分譲マンション情報|住まいネクスト株式会社

仲介手数料無料の中古マンション専門 ゼロネクストへのお問い合わせ
  • ゼロネクストの不動産売却実績
  • ゼロネクストが仲介手数料無料な理由
  • 住まいネクスト株式会社について
  • ログイン
  • 会員登録
  • ゼロネクストへメールでお問い合わせ

中古マンション

スカイパーク多摩川 お気に入り
価格 成約済 ローンシミュレーション
所在地 東京都大田区羽田4-3-3
この地域周辺の物件を見る
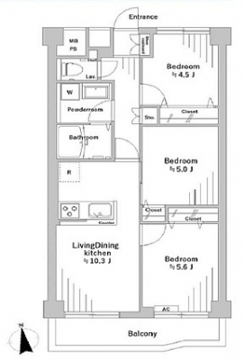
専有面積 58.52u 間取り 3LDK (LDK10.3/洋室5.6/洋室5/洋室4.5)
交通
京急空港線 穴守稲荷/徒歩2分
管理費等 8,880円 修繕積立金 8,330円
所在階/階数 8階/地上10階建 築年月 1982年1月築 バルコニー面積 5.47m²
ここがおすすめ

【仲介手数料が無料になる物件です】
マンション購入時の諸費用を節約する事が可能です。
新規内装リノベーション・済の綺麗な室内。南向き・陽当り良好・開放的な眺望。買物便利な立地です。


  • 現地外観写真 -
  • 間取り図 -
  • 現地外観写真 -
  • エントランス -
  • その他共用部 -
  • その他共用部 -
お問い合わせ、資料請求、見学のお申し込みはこちらから

電話をかける(携帯・PHS可)
0120-033-223
「ホームページを見た」とお伝え下さい。

お問い合わせ番号をお伝えください
RHS-c-433

内見予約
お問合せ
内見予約・お問い合わせ

セールスポイント

設備・特徴
  • 仲介手数料無料
  • バイク置き場
  • ペット飼育不可
  • アフターサービス保証付
  • 新耐震基準適合物件
  • 事務所使用不可
  • 駐輪場
  • 駐車場
  • カウンターキッチン
  • 洗浄便座付トイレ
  • 室内洗濯機置場
  • 浴室換気乾燥機付
  • 給湯器(追焚機能付)
  • フローリング
  • 洗面化粧台
  • エアコン
  • ガスコンロ
物件のおすすめ
ポイント
.:*:…╋ 特徴・ポイント ╋…♪.:*:’゜

アフターサービス保証
南向き・陽当り良好
開放的な眺望
浄水器付キッチン
追焚・浴室乾燥機バス
エアコン設置(1基)
穴守稲荷駅から徒歩2分
お買い物便利な立地

物件名:スカイパーク多摩川
間取り:3LDK
専有面積:58.52m2
バルコニー面積:5.47m2
構造:SRC造10階建
所在階:8階
築年月:1985年10月
総戸数:40戸
土地権利:所有権
管理費:8,880円/月
修繕積立金:8,330円/月
駐車場:有
バイク置場:1,000円〜/月
駐輪場:500円/月
ペット飼育:不可
事務所使用:不可
現況:空室
引渡:相談

新規内装リノベーション実施済
※2020年2月完成済

物件概要

採光面 取引態様 仲介
現況 空家 引渡し 即時
総戸数 40戸 構造 SRC造
テラス面積 - 専用庭面積 -
駐車場 駐輪場 有:500円/月
建物権利 区分所有 土地権利 所有権の共有
用途地域 商業地域 準工業地域 - 管理態様 管理形態:委託(巡回)
管理組合:あり
管理会社:ナイスコミュニティ
小学校区 大田区立羽田小学校
(東京都大田区)
この学区の他の物件を見る
中学校区 羽田中学校
(東京都大田区)
この学区の他の物件を見る
情報更新日 2020年09月18日 次回更新日 2020年10月02日
※各種情報と差異がある場合は現況優先となります
※物件情報の学区情報について
当サイト物件情報に記載されております通学区域(学区)情報は、国土数値情報ダウンロードサービスが提供する小学校区データ【2016年度】及び中学校区データ【2016年度】を元に加工したものですので、記載情報が現在の学区域と異なる場合がございます。
国土数値情報ダウンロードサービスのWEBサイト上で記述通り、データは必ずしも正確とは言えません。また、通学区域(学区)は毎年見直しの対象となりますので、そちらを踏まえ学区情報は参考としてご活用下さい。
お問い合わせ、資料請求、見学のお申し込みはこちらから

電話をかける(携帯・PHS可)
0120-033-223
「ホームページを見た」とお伝え下さい。

お問い合わせ番号をお伝えください
RHS-c-433

内見予約
お問合せ
内見予約・お問い合わせ

この物件でローンシミュレーションする

年利率
ボーナス払い 返済年数
頭金 直接入力する 万円

毎月のご返済額

ボーナス(×年2回)

物件価格

成約済
※返済金額はあくまでも目安です。

電話でお問い合わせ
ゼロネクスト

電話をかける

0120-033-223

※「ホームページを見た」とお伝えください。
お問い合わせ番号をお伝えください
RHS-c-433

お問い合わせ

お問い合わせ内容
お問合せ内容必須
【備考欄】
詳細な見学ご希望時間、ご質問、ご希望条件などがございましたらお聞かせ下さい。
(2000文字以内)
お客様情報
お名前必須
連絡先必須 メールアドレス

※ご記入いただいたメールアドレス宛てに、お問合せ内容の確認メールをお送りいたします。
※Yahoo!メールなどのフリーメールをご利用の場合、迷惑メールフォルダに入る場合があります。
 迷惑メールのフォルダ・設定等をご確認下さい。
電話番号
FAX(任意)
※ご入力いただいたお客さまの個人情報は、「個人情報のお取り扱いについて」に基づき適正に取り扱います。
必ずお読みになり、同意の上お問い合わせください。

お気軽にお問い合わせください

0120-033-223
物件番号 RHS-c-433
※「ホームページを見た」
とお伝え下さい。

PAGE TOP

住まいネクスト株式会社 住まいネクスト株式会社ロゴ

〒143-0016

東京都 大田区大森北1-1-5 YK-16ビル 6F

JR京浜東北線「大森」駅北口出口から徒歩1分

※物件内覧の際は、現地でのお待ち合わせ・解散が可能です。
お電話でのお問い合わせはコチラ 03-6423-0433 営業時間 10:00〜20:30 定休日:水曜日・年末年始・夏季休暇

※ご案内中は電話に出られないこともございます。
   その際は折り返しお電話させて頂きます。