| 価格 | 成約済 ![]() |
||||||
|---|---|---|---|---|---|---|---|
| 所在地 | 東京都江東区大島2-10-17
この地域周辺の物件を見る |
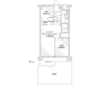
専有面積 | 51.84u | 間取り | 2LDK (LDK12.5/洋室6/洋室4.1) | ||
| 交通 | 都営新宿線 西大島/徒歩7分
JR総武線 亀戸/徒歩11分 東武亀戸線 亀戸/徒歩11分 |
管理費等 | 11,100円 | 修繕積立金 | 12,800円 | 所在階/階数 | 1階/地上5階建 | 築年月 | 1984年11月築 | バルコニー面積 | 6.21m² |
電話をかける(携帯・PHS可)
0120-033-223
「ホームページを見た」とお伝え下さい。
お問い合わせ番号をお伝えください
RHS-c-9464
| 設備・特徴 |
|
|---|---|
| 物件のおすすめ ポイント |
*~*:,_,:*~*:,_,:* …╋ ネオコーポ西大島II ╋… *~*:,_,:*~*:,_,:* .:*:…╋ 交通アクセス ╋…♪.:*:’ 都営新宿線「西大島」駅徒歩7分 JR総武中央線「亀戸」駅徒歩11分 東武亀戸線「亀戸」駅徒歩11分 .:*:…╋ 特徴・ポイント ╋…♪.:*:’゜ 新耐震基準マンション エレベーター完備 長期修繕計画書有 管理体制良好 1階部分・専用庭付 各室収納スペース インナーサッシ設置 アフターサービス保証 所在地:東京都江東区大島2-10-17 専有面積:51.84m2 バルコニー面積:6.21m2 専用庭面積:20.56m2 部屋数・間取り:2LDK 築年月:昭和59年11月 土地権利:所有権一部旧法賃借権 借地期限:令和35年12月10日迄 借地賃借料:1,230円/月 構造:RC造地上5階建 所在階:1階部分 総戸数:56戸 管理会社:大和ライフネクスト(株) 管理形態:全部委託(巡回) 管理費:11,100円/月 修繕積立金:12,800円/月 CATV使用料:330円/月 専用庭使用料:1,000円/月 分譲会社:環境開発(株) 施工会社:(株)長谷川工務店 ペット飼育:不可 事務所利用:不可 駐車場:21,000円/月 バイク置場:300円/月 駐輪場:100円〜300円/月 現況:空室 引渡:相談 :*:…╋ 新規内装リノベーション内容 ╋…♪:* システムキッチン ユニットバス シャワー付洗面化粧台 防水パン 温水洗浄便座付トイレ 給湯器 ダクト式エアコン 照明器具 建具 全熱交換器 フローリング フロアタイル クロス貼 インナーサッシ 室内クリーニング ※2022年5月24日完成済 .:*:…╋ Life Information ╋…♪.:*:’ まいばすけっと:徒歩8分 ファミリーマート:徒歩6分 くすりの福太郎:徒歩6分 マミー保育園:徒歩5分 |
| 採光面 | 西 | 取引態様 | 仲介 |
|---|---|---|---|
| 現況 | 空家 | 引渡し | 相談 |
| 総戸数 | 56戸 | 構造 | RC造 |
| テラス面積 | - | 専用庭面積 | 20.56m² |
| 駐車場 | 有:21,000円/月 | 駐輪場 | 有:100円/月 |
| 建物権利 | 区分所有 | 土地権利 | 所有権一部賃借権 借地期間:令和35年12月10日迄 借地料:1,230円/月 |
| 用途地域 | 準工業地域 - - | 管理態様 | 管理形態:委託(巡回) 管理組合:あり 管理会社:大和ライフネクスト |
| 小学校区 | 江東区立第一大島小学校 (東京都江東区) この学区の他の物件を見る |
中学校区 | 大島西中学校 (東京都江東区) この学区の他の物件を見る |
| 情報更新日 | 2022年11月17日 | 次回更新日 | 2022年12月01日 |
電話をかける(携帯・PHS可)
0120-033-223
「ホームページを見た」とお伝え下さい。
お問い合わせ番号をお伝えください
RHS-c-9464
| 年利率 | % |
||
|---|---|---|---|
| ボーナス払い | 返済年数 | ||
| 頭金 | 直接入力する | 万円 | |

毎月のご返済額 |
ボーナス(×年2回) |
物件価格成約済 |
電話でお問い合わせ
ゼロネクスト
|
電話をかける 0120-033-223 ※「ホームページを見た」とお伝えください。 |
お問い合わせ番号をお伝えください RHS-c-9464 |
|---|
【仲介手数料が無料になる物件です】
マンション購入時の諸費用を節約する事が可能です。
新規内装リノベーションの綺麗な室内。アフターサービス保証付。西大島駅徒歩7分・新耐震基準マンションです。