| 価格 | 成約済 ![]() |
||||||
|---|---|---|---|---|---|---|---|
| 所在地 | 東京都品川区北品川5-8-15
この地域周辺の物件を見る |
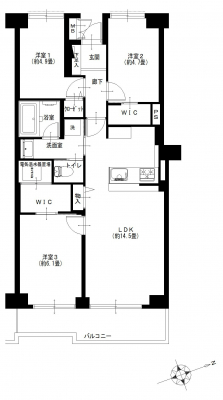
専有面積 | 67.35u | 間取り | 3LK (LDK14.5/洋室6.1/洋室4.9/洋室4.7) | ||
| 交通 | JR山手線 大崎/徒歩5分
JR埼京線 大崎/徒歩5分 湘南新宿ライン高海 大崎/徒歩5分 |
管理費等 | 8,800円 | 修繕積立金 | 7,040円 | 所在階/階数 | 6階/地上15階建 | 築年月 | 1981年2月築 | バルコニー面積 | 7.31m² |
電話をかける(携帯・PHS可)
0120-033-223
「ホームページを見た」とお伝え下さい。
お問い合わせ番号をお伝えください
RHS-c-27476
| 設備・特徴 |
|
|---|---|
| 物件のおすすめ ポイント |
*~*:,_,:*~*:,_,:*~* …╋ 北品川ホームズ ╋… *~*:,_,:*~*:,_,:*~* .:*:…╋ 交通アクセス ╋…♪.:*:’ JR山手線「大崎」駅徒歩5分 JR埼京線「大崎」駅徒歩5分 湘南新宿ライン「大崎」駅徒歩5分 りんかい線「大崎」駅徒歩5分 .:*:…╋ 特徴・ポイント ╋…♪.:*:’゜ フラット35適合 エレベーター完備 オートロック完備 防犯カメラ完備 ビッグコミュニティ 大規模修繕工事実施済 インスペクション済 6階部分・南東向き 浄水器付キッチン 食器洗浄乾燥機付 浴室換気乾燥機付 収納豊富なWIC有 各室収納スペース有 アフターサービス保証 所在地:東京都品川区北品川5-8-15 専有面積:67.35m2 バルコニー面積:7.31m2 部屋数・間取り:3LDK 築年月:昭和56年2月 土地権利:所有権 構造:SRC・RC造地上15階建 所在階:6階部分 総戸数:286戸 管理会社:三井不動産レジデンシャルサービス 管理形態:全部委託(日勤) 管理費:8,800円/月 修繕積立金:7,040円/月 分譲会社:(株)第一ホテルエンタープライズ 施工会社:清水建設(株) ペット飼育:不可 事務所利用:不可 駐車場:35,000円/月 バイク置場:4,000円/月 駐輪場:2,000円〜4,000円/年 現況:空室 引渡:相談 :*:…╋ 新規内装リノベーション内容 ╋…♪:* 電気温水器交換 システムキッチン交換 ユニットバス交換 洗面台交換 トイレ交換 全室クロス張替 全フローリング張替 全建具交換 CF張替 下足入れ交換 洗濯水栓器具交換 防水パン交換 スイッチパネル設置 ダウンライト設置 照明器具設置 玄関人感センサー設置 ※2025年8月完成 .:*:…╋ Life Information ╋…♪.:*:’ ゲートシティ大崎:徒歩5分 スーパーライフ:徒歩6分 ローソン:徒歩5分 トモズ:徒歩4分 グローバルキッズ:徒歩3分 区立御殿山小学校:徒歩7分 区立品川学園:徒歩12分 |
| 採光面 | 東南 | 取引態様 | 仲介 |
|---|---|---|---|
| 現況 | 空家 | 引渡し | 相談 |
| 総戸数 | 286戸 | 構造 | SRC造 |
| テラス面積 | - | 専用庭面積 | - |
| 駐車場 | 有:35,000円/月 | 駐輪場 | 有:166円/月 |
| 建物権利 | 区分所有 | 土地権利 | 所有権の共有 |
| 用途地域 | 準工業地域 - - | 管理態様 | 管理形態:委託(通勤) 管理組合:あり 管理会社:三井不動産レジデンシャルサービス |
| 小学校区 | 御殿山小学校 (東京都品川区) この学区の他の物件を見る |
中学校区 | 品川学園 (東京都品川区) この学区の他の物件を見る |
| 情報更新日 | 2026年01月28日 | 次回更新日 | 2026年02月11日 |
電話をかける(携帯・PHS可)
0120-033-223
「ホームページを見た」とお伝え下さい。
お問い合わせ番号をお伝えください
RHS-c-27476
| 年利率 | % |
||
|---|---|---|---|
| ボーナス払い | 返済年数 | ||
| 頭金 | 直接入力する | 万円 | |

毎月のご返済額 |
ボーナス(×年2回) |
物件価格成約済 |
電話でお問い合わせ
ゼロネクスト
|
電話をかける 0120-033-223 ※「ホームページを見た」とお伝えください。 |
お問い合わせ番号をお伝えください RHS-c-27476 |
|---|
【仲介手数料が無料になる物件です】
マンション購入時の諸費用を節約する事が可能です。
新規内装リノベーションの綺麗な室内。アフターサービス保証付。オートロック完備・総戸数286戸のビッグコミュニティです。