| 価格 | 成約済 ![]() |
||||||
|---|---|---|---|---|---|---|---|
| 所在地 | 東京都江東区東砂7-5-22
この地域周辺の物件を見る |
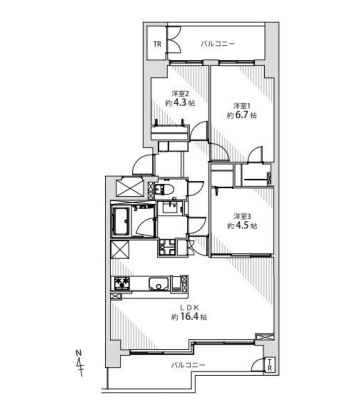
専有面積 | 71.11u | 間取り | 3LDK (LDK16.4/洋室6.7/洋室4.5/洋室4.3) | ||
| 交通 | 東京メトロ東西線 南砂町/徒歩11分
|
管理費等 | 9,240円 | 修繕積立金 | 14,510円 | 所在階/階数 | 7階/地上9階建 | 築年月 | 1998年12月築 | バルコニー面積 | 14.79m² |
電話をかける(携帯・PHS可)
0120-033-223
「ホームページを見た」とお伝え下さい。
お問い合わせ番号をお伝えください
RHS-c-20715
| 設備・特徴 |
|
|---|---|
| 物件のおすすめ ポイント |
*~*:,_,:*~*:,_,:*~*:,_,:* …╋ 東急ドエル・アルス南砂サルーテ ╋… *~*:,_,:*~*:,_,:*~*:,_,:* .:*:…╋ 交通アクセス ╋…♪.:*:’ 東京メトロ東西線「南砂町」駅徒歩11分 .:*:…╋ 特徴・ポイント ╋…♪.:*:’゜ 新耐震基準マンション エレベーター完備 宅配ボックス完備 オートロック完備 7階部分・南向き 陽当たり・通風良好 食器洗浄乾燥機付 収納豊富なWIC有 アフターサービス保証 所在地:東京都江東区東砂7-5-22 専有面積:71.11m2 バルコニー面積:14.79m2 部屋数・間取り:3LDK 築年月:平成10年12月 土地権利:所有権 構造:SRC・RC造地上9階建 所在階:7階部分 総戸数:96戸 管理会社:(株)東急コミュニティー 管理形態:全部委託(日勤) 管理費:9,240円/月 修繕積立金:14,510円/月 分譲会社:東急不動産(株) 施工会社:東急建設(株) 東レ建設(株) ペット飼育:不可 事務所利用:不可 駐車場:23,000円〜25,000円/月 駐輪場:有 現況:空室 引渡:相談 :*:…╋ 新規内装リノベーション内容 ╋…♪:* システムキッチン ユニットバス シャワー付洗面化粧台 防水パン 温水洗浄便座付トイレ エアコン先行配管 照明器具 建具 フローリング フロアタイル クロス貼 室内クリーニング ※2024年1月18日完成済 .:*:…╋ Life Information ╋…♪.:*:’ イオンスタイル:徒歩6分 ワイズディスカ:徒歩5分 まいばすけっと:徒歩9分 ファミリーマート:徒歩4分 セブンイレブン:徒歩4分 どらっぐぱぱす:徒歩5分 江東南砂六郵便局:徒歩6分 区立第五砂町幼稚園:徒歩3分 区立第五砂町小学校:徒歩9分 区立第二砂町中学校:徒歩6分 |
| 採光面 | 南 | 取引態様 | 仲介 |
|---|---|---|---|
| 現況 | 空家 | 引渡し | 相談 |
| 総戸数 | 96戸 | 構造 | SRC造 |
| テラス面積 | - | 専用庭面積 | - |
| 駐車場 | 有:23,000円/月 | 駐輪場 | 有 |
| 建物権利 | 区分所有 | 土地権利 | 所有権の共有 |
| 用途地域 | 準工業地域 - - | 管理態様 | 管理形態:委託(通勤) 管理組合:あり 管理会社:東急コミュニティー |
| 小学校区 | 江東区立第五砂町小学校 (東京都江東区) この学区の他の物件を見る |
中学校区 | 第二砂町中学校 (東京都江東区) この学区の他の物件を見る |
| 情報更新日 | 2024年06月26日 | 次回更新日 | 2024年07月10日 |
電話をかける(携帯・PHS可)
0120-033-223
「ホームページを見た」とお伝え下さい。
お問い合わせ番号をお伝えください
RHS-c-20715
| 年利率 | % |
||
|---|---|---|---|
| ボーナス払い | 返済年数 | ||
| 頭金 | 直接入力する | 万円 | |

毎月のご返済額 |
ボーナス(×年2回) |
物件価格成約済 |
電話でお問い合わせ
ゼロネクスト
|
電話をかける 0120-033-223 ※「ホームページを見た」とお伝えください。 |
お問い合わせ番号をお伝えください RHS-c-20715 |
|---|
【仲介手数料が無料になる物件です】
マンション購入時の諸費用を節約する事が可能です。
新規内装リノベーション済の綺麗な室内。南北2面バルコニー・陽当たり良好・アフターサービス保証付です。