| 価格 | 成約済 ![]() |
||||||
|---|---|---|---|---|---|---|---|
| 所在地 | 東京都文京区湯島3-20-6
この地域周辺の物件を見る |
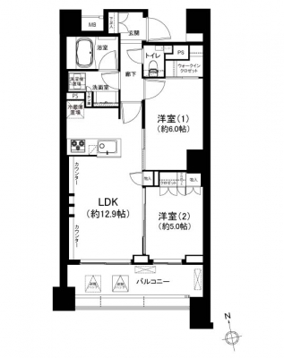
専有面積 | 54.74u | 間取り | 2LDK (LDK12.9/洋室6/洋室5) | ||
| 交通 | 東京メトロ千代田線 湯島/徒歩4分
JR中央本線 御茶ノ水/徒歩9分 JR山手線 御徒町/徒歩10分 |
管理費等 | 14,500円 | 修繕積立金 | 5,470円 | 所在階/階数 | 3階/地上14階建 | 築年月 | 2018年3月築 | バルコニー面積 | 10.58m² |
電話をかける(携帯・PHS可)
0120-033-223
「ホームページを見た」とお伝え下さい。
お問い合わせ番号をお伝えください
RHS-c-9420
| 設備・特徴 |
|
|---|---|
| 物件のおすすめ ポイント |
*~*:,_,:*~*:,_,:*~*:,_,:* …╋ グランリビオ ザ・レジデンス ╋… *~*:,_,:*~*:,_,:*~*:,_,:* .:*:…╋ 交通アクセス ╋…♪.:*:’ 東京メトロ千代田線「湯島」駅徒歩4分 JR中央総武線「御茶ノ水」駅徒歩9分 東京メトロ千代田線「新御茶ノ水」駅徒歩9分 JR山手線「御徒町」駅徒歩10分 JR京浜東北線「御徒町」駅徒歩10分 .:*:…╋ 特徴・ポイント ╋…♪.:*:’゜ 管理良好マンション 長期修繕計画書有 安心の内廊下設計 エレベーター完備 オートロック完備 宅配ボックス完備 ペットと暮らせます 3階部分・南向き 収納豊富なWIC有 各室収納スペース 床暖房完備(LD部) 浴室換気乾燥機付 家具・エアコン付 アフターサービス保証 所在地:東京都文京区湯島3-20-6 専有面積:54.74m2 バルコニー面積:10.58m2 部屋数・間取り:2LDK 築年月:平成30年3月 土地権利:所有権 構造:RC造地上14階建 所在階:3階部分 総戸数:121戸 管理会社:(株)日鉄コミュニティ 管理形態:全部委託(日勤) 管理費:14,500円/月 修繕積立金:5,470円/月 インターネット利用料:1,980円/月 スカパー施設利用料:500円/月 分譲会社:新日鉄興和不動産(株) 施工会社:(株)淺沼組 ペット飼育:可(規約有) 駐車場:30,000円〜35,000円/月 現況:空室 引渡:相談 :*:…╋ 新規内装リノベーション内容 ╋…♪:* クロス全面貼替 水廻り各種パーツ交換 洋室建具交換 スリット式ブラインド設置 ※2022年4月22日完成 |
| 採光面 | 南 | 取引態様 | 仲介 |
|---|---|---|---|
| 現況 | 空家 | 引渡し | 相談 |
| 総戸数 | 121戸 | 構造 | RC造 |
| テラス面積 | - | 専用庭面積 | - |
| 駐車場 | 有:30,000円/月 | 駐輪場 | - |
| 建物権利 | 区分所有 | 土地権利 | 所有権の共有 |
| 用途地域 | - - - | 管理態様 | 管理形態:委託(通勤) 管理組合:あり 管理会社:日鉄コミュニティ |
| 小学校区 | 湯島小学校 (東京都文京区) この学区の他の物件を見る |
中学校区 | 本郷台中学校 (東京都文京区) この学区の他の物件を見る |
| 情報更新日 | 2023年02月13日 | 次回更新日 | 2023年02月27日 |
電話をかける(携帯・PHS可)
0120-033-223
「ホームページを見た」とお伝え下さい。
お問い合わせ番号をお伝えください
RHS-c-9420
| 年利率 | % |
||
|---|---|---|---|
| ボーナス払い | 返済年数 | ||
| 頭金 | 直接入力する | 万円 | |

毎月のご返済額 |
ボーナス(×年2回) |
物件価格成約済 |
電話でお問い合わせ
ゼロネクスト
|
電話をかける 0120-033-223 ※「ホームページを見た」とお伝えください。 |
お問い合わせ番号をお伝えください RHS-c-9420 |
|---|
【仲介手数料が無料になる物件です】
マンション購入時の諸費用を節約する事が可能です。
新規内装リノベーションの綺麗な室内。平成30年築・総戸数121戸の大規模マンション・ペットと暮らせます。