| 価格 | 成約済 ![]() |
||||||
|---|---|---|---|---|---|---|---|
| 所在地 | 東京都江東区木場3-14-7
この地域周辺の物件を見る |
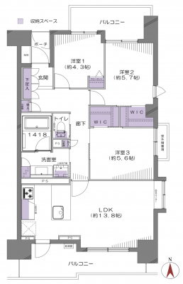
専有面積 | 72.32u | 間取り | 3LDK (LDK13.8/洋室5.7/洋室5.6/洋室4.3) | ||
| 交通 | 東京メトロ東西線 木場/徒歩10分
|
管理費等 | 16,560円 | 修繕積立金 | 8,280円 | 所在階/階数 | 4階/地上14階建 | 築年月 | 1997年9月築 | バルコニー面積 | 15.88m² |
電話をかける(携帯・PHS可)
0120-033-223
「ホームページを見た」とお伝え下さい。
お問い合わせ番号をお伝えください
RHS-c-9921
| 設備・特徴 |
|
|---|---|
| 物件のおすすめ ポイント |
*~*:,_,:*~*:,_,:*~* …╋ ルイシャトレ木場公園 ╋… *~*:,_,:*~*:,_,:*~* .:*:…╋ 交通アクセス ╋…♪.:*:’ 東京メトロ東西線「木場」駅徒歩10分 .:*:…╋ 特徴・ポイント ╋…♪.:*:’゜ 4階部分・南東北3方向角部屋 南北2面バルコニー 陽当たり・通風良好 収納豊富なWIC有 各室収納スペース 浄水器付キッチン 食器洗浄乾燥機付 浴室換気乾燥機付 エアコン設置(1基) アフターサービス保証 新耐震基準マンション フラット35S適合 オートロック完備 宅配ボックス完備 エレベーター完備 所在地:東京都江東区木場3-14-7 専有面積:72.32m2 バルコニー面積:15.88m2 部屋数・間取り:3LDK 築年月:平成9年9月 土地権利:所有権 構造:SRC造地上14階建 所在階:4階部分 総戸数:26戸 管理会社:日本ハウズイング(株) 管理形態:全部委託(巡回) 管理費:16,560円/月 修繕積立金:8,280円/月 分譲会社:ニチモ 施工会社:淺沼組 駐車場:13,000円〜18,000円/月 駐輪場:無償 現況:空室 引渡:相談 :*:…╋ 新規内装リノベーション内容 ╋…♪:* ◇玄関◇ 鏡付玄関収納新規交換 人感センサー取付 床タイル張替 ◇キッチン◇ システムキッチン交換 ビルトイン食洗機 浄水器付水栓 3口ガラストップコンロ ◇浴室◇ ユニットバス交換 浴室換気乾燥暖房機 追炊機能) ◇洗面室◇ 洗面化粧台交換 洗濯用防水パン・水栓交換 吊戸棚取付 ◇トイレ◇ 一体型シャワートイレ交換 吊戸棚取付 ◇その他◇ フローリング貼替 建具交換 壁・天井クロス張替 LED照明器具取付 給湯器交換 エアコン1基設置 (洋室2予定) 網戸張替 ハウスクリーニング ※2022年5月完成 .:*:…╋ Life Information ╋…♪.:*:’ オーケーストア:徒歩8分 まいばすけっと:徒歩8分 セブンイレブン:徒歩4分 ファミリーマート:徒歩6分 スギ薬局:徒歩8分 ウエルシア:徒歩10分 都立木場公園:徒歩3分 区立数矢小学校:徒歩9分 区立東陽中学校:徒歩24分 |
| 採光面 | 南 | 取引態様 | 仲介 |
|---|---|---|---|
| 現況 | 空家 | 引渡し | 相談 |
| 総戸数 | 26戸 | 構造 | SRC造 |
| テラス面積 | - | 専用庭面積 | - |
| 駐車場 | 有:13,000円/月 | 駐輪場 | 有 |
| 建物権利 | 区分所有 | 土地権利 | 所有権の共有 |
| 用途地域 | 準工業地域 - - | 管理態様 | 管理形態:委託(巡回) 管理組合:あり 管理会社:日本ハウズイング |
| 小学校区 | 江東区立数矢小学校 (東京都江東区) この学区の他の物件を見る |
中学校区 | 東陽中学校 (東京都江東区) この学区の他の物件を見る |
| 情報更新日 | 2022年11月17日 | 次回更新日 | 2022年12月01日 |
電話をかける(携帯・PHS可)
0120-033-223
「ホームページを見た」とお伝え下さい。
お問い合わせ番号をお伝えください
RHS-c-9921
| 年利率 | % |
||
|---|---|---|---|
| ボーナス払い | 返済年数 | ||
| 頭金 | 直接入力する | 万円 | |

毎月のご返済額 |
ボーナス(×年2回) |
物件価格成約済 |
電話でお問い合わせ
ゼロネクスト
|
電話をかける 0120-033-223 ※「ホームページを見た」とお伝えください。 |
お問い合わせ番号をお伝えください RHS-c-9921 |
|---|
【仲介手数料が無料になる物件です】
マンション購入時の諸費用を節約する事が可能です。
新規内装リノベーションの綺麗な室内。南東北3方向角部屋につき陽当たり・通風良好。都立木場公園まで徒歩4分です。