【仲介手数料無料】東大井スカイハイツ 成約済 東京都品川区東大井2-13-10の中古マンション||分譲マンション情報|住まいネクスト株式会社

仲介手数料無料の中古マンション専門 ゼロネクストへのお問い合わせ
  • ゼロネクストの不動産売却実績
  • ゼロネクストが仲介手数料無料な理由
  • 住まいネクスト株式会社について
  • ログイン
  • 会員登録
  • ゼロネクストへメールでお問い合わせ
>
>
中古マンション > 品川区 > 京急本線 >
東大井スカイハイツ

中古マンション

東大井スカイハイツ お気に入り
価格 成約済 ローンシミュレーション
所在地 東京都品川区東大井2-13-10
この地域周辺の物件を見る
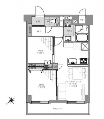
専有面積 50.02u 間取り 2LDK (LDK11.1/洋室5.1/洋室4)
交通
京急本線 立会川/徒歩4分
京急本線 鮫洲/徒歩7分
JR京浜東北・根岸線 大井町/徒歩14分
管理費等 10,630円 修繕積立金 7,010円
所在階/階数 2階/地上11階建 築年月 1979年7月築 バルコニー面積 7.57m²
ここがおすすめ

【仲介手数料が無料になる物件です】
マンション購入時の諸費用を節約する事が可能です。
新規内装リノベーションの綺麗な室内。総戸数145戸のビッグコミュニティ・耐震補強工事実施済・ペットと暮らせます。


  • 現地外観写真 -
  • 間取り図 -
  • 現地外観写真 -
  • エントランス -
  • エントランス -
  • エントランス -
  • その他共用部 宅配ボックス
  • その他共用部 エレベーター
  • その他共用部 管理室
お問い合わせ、資料請求、見学のお申し込みはこちらから

電話をかける(携帯・PHS可)
0120-033-223
「ホームページを見た」とお伝え下さい。

お問い合わせ番号をお伝えください
RHS-c-28655

内見予約
お問合せ
内見予約・お問い合わせ

セールスポイント

設備・特徴
  • 仲介手数料無料
  • バイク置き場
  • ペット飼育相談可
  • 新耐震基準適合物件
  • 事務所使用不可
  • 耐震補強工事実施済
  • 管理体制良好
  • 駐輪場
  • 駐車場
  • 宅配ボックス
  • エレベーター
  • 洗浄便座付トイレ
  • 室内洗濯機置場
  • 浴室換気乾燥機付
  • TVモニタ付インターホン
  • フローリング
  • 洗面化粧台
  • 浄水器一体型水栓
  • 電気温水器
  • 電気温水器(追焚付)
物件のおすすめ
ポイント
*~*:,_,:*~*:,_,:*~*
…╋ 東大井スカイハイツ ╋…
*~*:,_,:*~*:,_,:*~*

.:*:…╋ 交通アクセス ╋…♪.:*:’ 

京浜急行線「立会川」駅徒歩4分
京浜急行線「鮫洲」駅徒歩7分
JR京浜東北線「大井町」駅徒歩14分
東急大井町線「大井町」駅徒歩14分
りんかい線「大井町」駅徒歩14分

.:*:…╋ 特徴・ポイント ╋…♪.:*:’゜

耐震補強工事実施済
新耐震基準適合建物
管理良好マンション
長期修繕計画書有
ビッグコミュニティ
ペットと暮らせます
宅配ボックス完備
エレベーター完備
2階部分・北西向き
浄水器付キッチン
浴室換気乾燥機付
各室収納スペース有

所在地:東京都品川区東大井2-13-10
専有面積:50.02m2
バルコニー面積:7.57m2
部屋数・間取り:2LDK
築年月:昭和54年7月
土地権利:所有権
構造:SRC造地上11階建
所在階:2階部分
総戸数:145戸
管理会社:(株)長谷工コミュニティ
管理形態:全部委託(日勤)
管理費:10,630円/月
修繕積立金:7,010円/月
分譲会社:(株)ファミリー
施工会社:(株)長谷川工務店
ペット飼育:可(規約有)
事務所使用:不可
駐車場:30,000円/月
バイク置場:600円〜1,000円/月
駐輪場:400円〜600円/月
現況:空室
引渡:相談

:*:…╋ 新規内装リノベーション内容 ╋…♪:*

フローリング新規貼替
ユニットバス新規交換
洗面化粧台新規交換
トイレ新規交換
システムキッチン新規交換
壁・天井クロス新規交換
建具・玄関収納新規交換
電気温水器新規交換
洗濯水栓・防水パン新規交換
給排水管新規交換(一部既存)
※2025年12月完成予定

.:*:…╋ Life Information ╋…♪.:*:’

まいばすけっと:徒歩3分
セブンイレブン:徒歩1分
ファミリーマート:徒歩2分
ローソン:徒歩5分
スギ薬局:徒歩9分
品川東大井二郵便局:徒歩3分
東大井かがやき保育園:徒歩2分
区立鮫浜小学校:徒歩4分
区立浜川中学校:徒歩4分

物件概要

採光面 北西 取引態様 仲介
現況 空家 引渡し 相談
総戸数 145戸 構造 SRC造
テラス面積 - 専用庭面積 -
駐車場 有:30,000円/月 駐輪場 有:400円/月
建物権利 区分所有 土地権利 所有権の共有
用途地域 商業地域 - - 管理態様 管理形態:委託(通勤)
管理組合:あり
管理会社:長谷工コミュニティ
小学校区 鮫浜小学校
(東京都品川区)
この学区の他の物件を見る
中学校区 浜川中学校
(東京都品川区)
この学区の他の物件を見る
情報更新日 2026年01月28日 次回更新日 2026年02月11日
※各種情報と差異がある場合は現況優先となります
※物件情報の学区情報について
当サイト物件情報に記載されております通学区域(学区)情報は、国土数値情報ダウンロードサービスが提供する小学校区データ【2016年度】及び中学校区データ【2016年度】を元に加工したものですので、記載情報が現在の学区域と異なる場合がございます。
国土数値情報ダウンロードサービスのWEBサイト上で記述通り、データは必ずしも正確とは言えません。また、通学区域(学区)は毎年見直しの対象となりますので、そちらを踏まえ学区情報は参考としてご活用下さい。
お問い合わせ、資料請求、見学のお申し込みはこちらから

電話をかける(携帯・PHS可)
0120-033-223
「ホームページを見た」とお伝え下さい。

お問い合わせ番号をお伝えください
RHS-c-28655

内見予約
お問合せ
内見予約・お問い合わせ

この物件でローンシミュレーションする

年利率
ボーナス払い 返済年数
頭金 直接入力する 万円

毎月のご返済額

ボーナス(×年2回)

物件価格

成約済
※返済金額はあくまでも目安です。
  • こちらの物件を見たお客様はこんな物件もチェックしています。
  • お気に入り物件

電話でお問い合わせ
ゼロネクスト

電話をかける

0120-033-223

※「ホームページを見た」とお伝えください。
お問い合わせ番号をお伝えください
RHS-c-28655

お問い合わせ

お問い合わせ内容
お問合せ内容必須
【備考欄】
詳細な見学ご希望時間、ご質問、ご希望条件などがございましたらお聞かせ下さい。
(2000文字以内)
お客様情報
お名前必須
連絡先必須 メールアドレス

※ご記入いただいたメールアドレス宛てに、お問合せ内容の確認メールをお送りいたします。
※Yahoo!メールなどのフリーメールをご利用の場合、迷惑メールフォルダに入る場合があります。
 迷惑メールのフォルダ・設定等をご確認下さい。
電話番号
FAX(任意)
※ご入力いただいたお客さまの個人情報は、「個人情報のお取り扱いについて」に基づき適正に取り扱います。
必ずお読みになり、同意の上お問い合わせください。

お気軽にお問い合わせください

0120-033-223
物件番号 RHS-c-28655
※「ホームページを見た」
とお伝え下さい。

PAGE TOP

住まいネクスト株式会社 住まいネクスト株式会社ロゴ

〒143-0016

東京都 大田区大森北1-1-5 YK-16ビル 6F

JR京浜東北線「大森」駅北口出口から徒歩1分

※物件内覧の際は、現地でのお待ち合わせ・解散が可能です。
お電話でのお問い合わせはコチラ 03-6423-0433 営業時間 10:00〜20:30 定休日:水曜日・年末年始・夏季休暇

※ご案内中は電話に出られないこともございます。
   その際は折り返しお電話させて頂きます。