| 価格 | 成約済 ![]() |
||||||
|---|---|---|---|---|---|---|---|
| 所在地 | 東京都新宿区上落合2-27-12
この地域周辺の物件を見る |
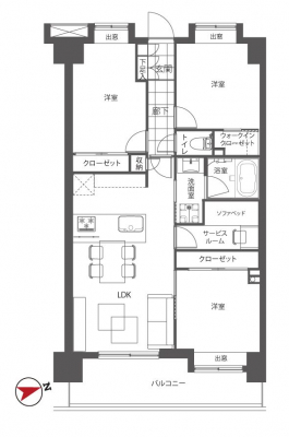
専有面積 | 68.4u | 間取り | 3SLDK (-) | ||
| 交通 | 都営大江戸線 中井/徒歩2分
東京メトロ東西線 落合/徒歩4分 JR中央本線 東中野/徒歩10分 |
管理費等 | 14,400円 | 修繕積立金 | 9,720円 | 所在階/階数 | 6階/地上14階 地下1階建 | 築年月 | 1998年12月築 | バルコニー面積 | 11.72m² |
電話をかける(携帯・PHS可)
0120-033-223
「ホームページを見た」とお伝え下さい。
お問い合わせ番号をお伝えください
RHS-c-11959
| 設備・特徴 |
|
|---|---|
| 物件のおすすめ ポイント |
*~*:,_,:*~*:,_,: …╋ アドリーム落合 ╋… *~*:,_,:*~*:,_,: .:*:…╋ 交通アクセス ╋…♪.:*:’ 都営大江戸線「中井」駅徒歩2分 西武新宿線「中井」駅徒歩2分 東京メトロ東西線「落合」駅徒歩4分 JR中央総武線「東中野」駅徒歩10分 .:*:…╋ 特徴・ポイント ╋…♪.:*:’゜ 6階部分・東向き 浄水器付キッチン 食器洗浄乾燥機付 浴室換気乾燥機付 エアコン設置(1基) 大理石貼り玄関廊下 各室収納スペース 収納豊富なWIC有 全室フローリング アフターサービス保証 エレベーター完備 オートロック完備 宅配ボックス完備 ペットと暮らせます 所在地:東京都新宿区上落合2-27-12 専有面積:68.40m2 バルコニー面積:11.72m2 部屋数・間取り:3SLDK 築年月:平成10年12月 土地権利:所有権 構造:SRC造地下1階付地上14階建 所在階:6階部分 総戸数:64戸 管理会社:(株)穴吹ハウジングサービス 管理形態:全部委託(日勤) 管理費:14,400円/月 修繕積立金:9,720円/月 分譲会社:日本信販(株) 施工会社:(株)フジタ ペット飼育:可(規約有) 駐輪場:有 現況:空室 引渡:相談 :*:…╋ 新規内装リフォーム内容 ╋…♪:* システムキッチン新規交換 (食洗機、浄水器一体型) ユニットバス新規交換 (浴室乾燥機付) 建具新規交換 エアコン新規設置 (リビング) クロス貼替 フローリング貼替 洗面化粧台新規交換 温水洗浄機能付トイレ交換 ダウンライト新規設置 玄関廊下大理石貼り 給湯器新規交換 (追焚き付) 洗濯パン・水栓新規交換 ルームクリーニング |
| 採光面 | 東 | 取引態様 | 仲介 |
|---|---|---|---|
| 現況 | 空家 | 引渡し | 相談 |
| 総戸数 | 64戸 | 構造 | SRC造 |
| テラス面積 | - | 専用庭面積 | - |
| 駐車場 | - | 駐輪場 | 有 |
| 建物権利 | 区分所有 | 土地権利 | 所有権の共有 |
| 用途地域 | - - - | 管理態様 | 管理形態:委託(通勤) 管理組合:あり 管理会社:穴吹ハウジングサービス |
| 小学校区 | 新宿区立落合第二小学校 (東京都新宿区) この学区の他の物件を見る |
中学校区 | 新宿西戸山中学校 (東京都新宿区) この学区の他の物件を見る |
| 情報更新日 | 2022年12月06日 | 次回更新日 | 2022年12月20日 |
電話をかける(携帯・PHS可)
0120-033-223
「ホームページを見た」とお伝え下さい。
お問い合わせ番号をお伝えください
RHS-c-11959
| 年利率 | % |
||
|---|---|---|---|
| ボーナス払い | 返済年数 | ||
| 頭金 | 直接入力する | 万円 | |

毎月のご返済額 |
ボーナス(×年2回) |
物件価格成約済 |
電話でお問い合わせ
ゼロネクスト
|
電話をかける 0120-033-223 ※「ホームページを見た」とお伝えください。 |
お問い合わせ番号をお伝えください RHS-c-11959 |
|---|
【仲介手数料が無料になる物件です】
マンション購入時の諸費用を節約する事が可能です。
新規内装リフォーム済の綺麗な室内。ペットと暮らせます。JR中央線「東中野駅」徒歩圏・利便性の高い好立地です。