| 価格 | 成約済 ![]() |
||||||
|---|---|---|---|---|---|---|---|
| 所在地 | 東京都港区白金台3-7-7
この地域周辺の物件を見る |
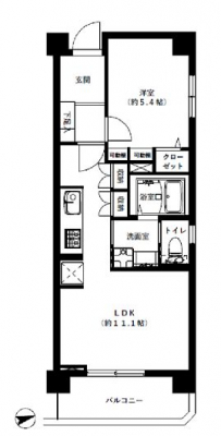
専有面積 | 39.3u | 間取り | 1LDK (LDK11.1/洋室5.4) | ||
| 交通 | 東京メトロ南北線 白金台/徒歩4分
都営三田線 白金台/徒歩4分 都営浅草線 高輪台/徒歩7分 |
管理費等 | 10,900円 | 修繕積立金 | 10,420円 | 所在階/階数 | 1階/地上5階建 | 築年月 | 1978年3月築 | バルコニー面積 | 6m² |
電話をかける(携帯・PHS可)
0120-033-223
「ホームページを見た」とお伝え下さい。
お問い合わせ番号をお伝えください
RHS-c-15382
| 設備・特徴 |
|
|---|---|
| 物件のおすすめ ポイント |
*~*:,_,:*~*:,_,:*~* …╋ 白金台ローヤルコーポ ╋… *~*:,_,:*~*:,_,:*~* .:*:…╋ 交通アクセス ╋…♪.:*:’ 都営三田線「白金台」駅徒歩4分 東京メトロ南北線「白金台」駅徒歩4分 都営浅草線「高輪台」駅徒歩7分 JR山手線「目黒」駅徒歩16分 東京メトロ南北線「目黒」駅徒歩16分 都営三田線「目黒」駅徒歩16分 東急目黒線「目黒」駅徒歩16分 .:*:…╋ 特徴・ポイント ╋…♪.:*:’゜ 閑静な住宅街に立地 緑豊かな住環境 エレベーター完備 オートロック完備 24時間ゴミ出し可 1階部分・東向き 浄水器付キッチン 食器洗浄乾燥機付 浴室換気乾燥機付 所在地:東京都港区白金台3-7-7 専有面積:39.30m2 バルコニー面積:6.00m2 部屋数・間取り:1LDK 築年月:昭和53年3月 土地権利:所有権 構造:RC造地上5階建 所在階:1階部分 総戸数:73戸 管理会社:(株)長谷工コミュニティ 管理形態:全部委託(日勤) 管理費:10,900円/月 修繕積立金:10,420円/月 分譲会社:藤澤建設(株)・(株)日交開発 施工会社:藤澤建設(株) ペット飼育:不可 事務所利用:不可 駐車場:30,000円/月 駐輪場:500円/年 現況:空室 引渡:相談 :*:…╋ 新規内装リフォーム内容 ╋…♪:* システムキッチン交換 ユニットバス交換 洗面化粧台交換 トイレ交換 無垢フローリング張替 クロス張替 フロアタイル張替 建具交換 下足入交換 クローゼット新設 給湯器交換 照明器具設置 洗濯防水パン交換 ルームクリーニング ※2023年4月完成 |
| 採光面 | 東 | 取引態様 | 仲介 |
|---|---|---|---|
| 現況 | 空家 | 引渡し | 相談 |
| 総戸数 | 73戸 | 構造 | RC造 |
| テラス面積 | - | 専用庭面積 | - |
| 駐車場 | 有:30,000円/月 | 駐輪場 | 有:41円/月 |
| 建物権利 | 区分所有 | 土地権利 | 所有権の共有 |
| 用途地域 | 第一種中高層住居専用地域 - - | 管理態様 | 管理形態:委託(通勤) 管理組合:あり 管理会社:長谷工コミュニティ |
| 小学校区 | 港区立白金小学校 (東京都港区) この学区の他の物件を見る |
中学校区 | 高松中学校 (東京都港区) この学区の他の物件を見る |
| 情報更新日 | 2024年01月08日 | 次回更新日 | 2024年01月22日 |
電話をかける(携帯・PHS可)
0120-033-223
「ホームページを見た」とお伝え下さい。
お問い合わせ番号をお伝えください
RHS-c-15382
| 年利率 | % |
||
|---|---|---|---|
| ボーナス払い | 返済年数 | ||
| 頭金 | 直接入力する | 万円 | |

毎月のご返済額 |
ボーナス(×年2回) |
物件価格成約済 |
電話でお問い合わせ
ゼロネクスト
|
電話をかける 0120-033-223 ※「ホームページを見た」とお伝えください。 |
お問い合わせ番号をお伝えください RHS-c-15382 |
|---|
【仲介手数料が無料になる物件です】
マンション購入時の諸費用を節約する事が可能です。
新規内装フルリフォームの綺麗な室内。「白金台駅」徒歩4分・「目黒駅」徒歩圏の閑静な住宅街に立地。