【仲介手数料無料】西戸山タワーホウムズノースタワー 9,150万円 東京都新宿区百人町3-1-5の中古マンション||分譲マンション情報|住まいネクスト株式会社

仲介手数料無料の中古マンション専門 ゼロネクストへのお問い合わせ
  • ゼロネクストの不動産売却実績
  • ゼロネクストが仲介手数料無料な理由
  • 住まいネクスト株式会社について
  • ログイン
  • 会員登録
  • ゼロネクストへメールでお問い合わせ
>
>
中古マンション > 新宿区 > JR山手線 >
西戸山タワーホウムズノースタワー

中古マンション

西戸山タワーホウムズノースタワー お気に入り
価格 9,150万円 ローンシミュレーション
所在地 東京都新宿区百人町3-1-5
この地域周辺の物件を見る
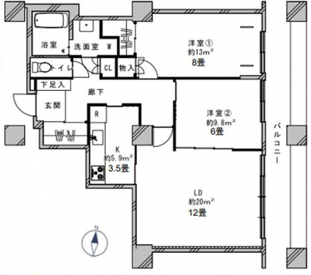
専有面積 75.75u 間取り 2LDK (LDK13.5/洋室8/洋室6)
交通
JR山手線 新大久保/徒歩9分
JR山手線 高田馬場/徒歩10分
JR中央線 大久保/徒歩12分
管理費等 15,918円 修繕積立金 21,049円
所在階/階数 3階/地上25階 地下1階建 築年月 1988年1月築 バルコニー面積 8.83m²
ここがおすすめ

【仲介手数料約308万円が無料になる物件です】
マンション購入時の諸費用を節約する事が可能です。
新規内装リフォーム済の綺麗な室内。総戸数587戸のビッグコミュニティ・西戸山公園まで徒歩1分の緑豊かな住環境です。


  • 現地外観写真 -
  • 間取り図 -
  • 現地外観写真 -
  • エントランス -
  • エントランス オートロック
  • その他共用部 -
  • その他共用部 エレベーター
  • その他共用部 -
  • その他共用部 -
  • その他共用部 -
お問い合わせ、資料請求、見学のお申し込みはこちらから

電話をかける(携帯・PHS可)
0120-033-223
「ホームページを見た」とお伝え下さい。

お問い合わせ番号をお伝えください
RHS-c-29110

内見予約
お問合せ
内見予約・お問い合わせ

セールスポイント

設備・特徴
  • 仲介手数料無料
  • バイク置き場
  • ペット飼育不可
  • 新耐震基準適合物件
  • 事務所使用不可
  • 管理体制良好
  • 駐輪場
  • 駐車場
  • 宅配ボックス
  • オートロック
  • エレベーター
  • 洗浄便座付トイレ
  • 室内洗濯機置場
  • フローリング
  • 洗面化粧台
物件のおすすめ
ポイント
*~*:,_,:*~*:,_,:*~*:,_,:*
…╋ 西戸山タワーホウムズ
         ノースタワー ╋…
*~*:,_,:*~*:,_,:*~*:,_,:*

.:*:…╋ 交通アクセス ╋…♪.:*:’ 

JR山手線「新大久保」駅徒歩9分
JR山手線「高田馬場」駅徒歩10分
東京メトロ東西線「高田馬場」駅徒歩10分
西武新宿線「高田馬場」駅徒歩10分
JR中央総武線「大久保」駅徒歩12分

.:*:…╋ 特徴・ポイント ╋…♪.:*:’゜

25階建・総戸数587戸
ビッグコミュニティ
管理良好マンション
長期修繕計画書有
オートロック完備
エレベーター完備
宅配ボックス完備

所在地:東京都新宿区百人町3-1-5
専有面積:75.75m2
バルコニー面積:8.83m2
部屋数・間取り:2LDK
築年月:昭和63年1月
土地権利:所有権
構造:RC造地下1階付地上25階建
所在階:3階部分
総戸数:587戸
管理会社:(株)東急コミュニティー
管理形態:全部委託(日勤)
管理費:15,918円/月
修繕積立金:21,049円/月
給湯基本使用料:2,022円/月
分譲会社:新宿西戸山開発(株)
施工会社:鹿島建設・大林組・竹中工務店他
ペット飼育:不可
事務所利用:不可
駐車場:28,000円〜34,000円/月
バイク置場:5,000円〜9,000円/月
駐輪場:400円〜800円/月
現況:空室
引渡:相談

:*:…╋ 新規内装リフォーム内容 ╋…♪:*

二重サッシ設置
クロス張替
クッションフロア張替
ソフト巾木交換
エコカラット設置
キッチン交換
ユニットバス交換
洗面化粧台交換
トイレ交換
洗濯防水パン交換
室内クリーニング
※2025年9月完成済

.:*:…╋ Life Information ╋…♪.:*:’

ファミリーマート 約320m
まいばすけっと 約400m
マルエツ 約460m
東京山手メディカルセンター 約360m
西戸山公園 約60m
新宿百人町郵便局 約440m
区立西戸山小学校 約570m
区立新宿西戸山中学校 約450m

物件概要

採光面 取引態様 仲介
現況 空家 引渡し 相談
総戸数 587戸 構造 RC造
テラス面積 - 専用庭面積 -
駐車場 有:28,000円/月 駐輪場 有:400円/月
建物権利 区分所有 土地権利 所有権の共有
用途地域 第一種中高層住居専用地域 - - 管理態様 管理形態:委託(通勤)
管理組合:あり
管理会社:東急コミュニティー
小学校区 新宿区立西戸山小学校
(東京都新宿区)
この学区の他の物件を見る
中学校区 新宿西戸山中学校
(東京都新宿区)
この学区の他の物件を見る
情報更新日 2025年12月11日 次回更新日 2025年12月25日
※各種情報と差異がある場合は現況優先となります
※物件情報の学区情報について
当サイト物件情報に記載されております通学区域(学区)情報は、国土数値情報ダウンロードサービスが提供する小学校区データ【2016年度】及び中学校区データ【2016年度】を元に加工したものですので、記載情報が現在の学区域と異なる場合がございます。
国土数値情報ダウンロードサービスのWEBサイト上で記述通り、データは必ずしも正確とは言えません。また、通学区域(学区)は毎年見直しの対象となりますので、そちらを踏まえ学区情報は参考としてご活用下さい。
お問い合わせ、資料請求、見学のお申し込みはこちらから

電話をかける(携帯・PHS可)
0120-033-223
「ホームページを見た」とお伝え下さい。

お問い合わせ番号をお伝えください
RHS-c-29110

内見予約
お問合せ
内見予約・お問い合わせ

この物件でローンシミュレーションする

年利率
ボーナス払い 返済年数
頭金 直接入力する 万円

毎月のご返済額

ボーナス(×年2回)

物件価格

9,150万円
※返済金額はあくまでも目安です。
  • こちらの物件を見たお客様はこんな物件もチェックしています。
  • お気に入り物件

同じ価格帯の物件はこちら

広さの近い物件はこちら

同じ小学校区の物件はこちら

電話でお問い合わせ
ゼロネクスト

電話をかける

0120-033-223

※「ホームページを見た」とお伝えください。
お問い合わせ番号をお伝えください
RHS-c-29110

お問い合わせ

お問い合わせ内容
お問合せ内容必須
【備考欄】
詳細な見学ご希望時間、ご質問、ご希望条件などがございましたらお聞かせ下さい。
(2000文字以内)
お客様情報
お名前必須
連絡先必須 メールアドレス

※ご記入いただいたメールアドレス宛てに、お問合せ内容の確認メールをお送りいたします。
※Yahoo!メールなどのフリーメールをご利用の場合、迷惑メールフォルダに入る場合があります。
 迷惑メールのフォルダ・設定等をご確認下さい。
電話番号
FAX(任意)
※ご入力いただいたお客さまの個人情報は、「個人情報のお取り扱いについて」に基づき適正に取り扱います。
必ずお読みになり、同意の上お問い合わせください。

お気軽にお問い合わせください

0120-033-223
物件番号 RHS-c-29110
※「ホームページを見た」
とお伝え下さい。

PAGE TOP

住まいネクスト株式会社 住まいネクスト株式会社ロゴ

〒143-0016

東京都 大田区大森北1-1-5 YK-16ビル 6F

JR京浜東北線「大森」駅北口出口から徒歩1分

※物件内覧の際は、現地でのお待ち合わせ・解散が可能です。
お電話でのお問い合わせはコチラ 03-6423-0433 営業時間 10:00〜20:30 定休日:水曜日・年末年始・夏季休暇

※ご案内中は電話に出られないこともございます。
   その際は折り返しお電話させて頂きます。