| 価格 | 成約済 ![]() |
||||||
|---|---|---|---|---|---|---|---|
| 所在地 | 東京都中野区上鷺宮2-13-3
この地域周辺の物件を見る |
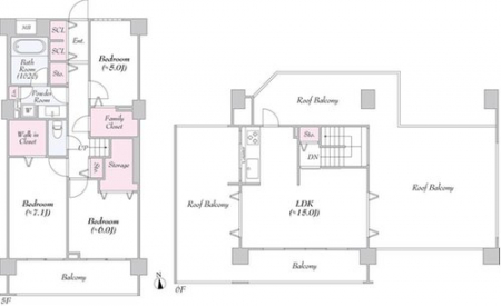
専有面積 | 89.05u | 間取り | 3LDK (LDK15/洋室7/洋室6/洋室5) | ||
| 交通 | 西武新宿線 鷺ノ宮/徒歩11分
西武池袋線 富士見台/徒歩15分 |
管理費等 | 14,160円 | 修繕積立金 | 21,150円 | 所在階/階数 | 5階/地上6階 地下1階建 | 築年月 | 2011年3月築 | バルコニー面積 | 21.45m² |
電話をかける(携帯・PHS可)
0120-033-223
「ホームページを見た」とお伝え下さい。
お問い合わせ番号をお伝えください
RHS-c-23900
| 設備・特徴 |
|
|---|---|
| 物件のおすすめ ポイント |
*~*:,_,:*~*:,_,:*~*:,_,:* …╋ グランベル鷺宮サンクチュアリ ╋… *~*:,_,:*~*:,_,:*~*:,_,:* .:*:…╋ 交通アクセス ╋…♪.:*:’ 西武新宿線「鷺ノ宮」駅徒歩11分 西武池袋線「富士見台」駅徒歩15分 .:*:…╋ 特徴・ポイント ╋…♪.:*:’゜ メゾネットタイプ 最上階・南向き 陽当り・眺望良好 ルーフバルコニー付 浄水器付キッチン 食器洗浄乾燥機付 収納豊富なWIC有 エレベーター完備 オートロック完備 宅配ボックス完備 トランクルーム有 ペットと暮らせます 所在地:東京都中野区上鷺宮2-13-3 専有面積:89.05m2 バルコニー面積:21.45m2 ルーフバルコニー面積:66.62m2 部屋数・間取り:3LDK 築年月:2011年3月 土地権利:所有権 構造:RC造地下1階付地上6階建 所在階:5・6階部分 総戸数:29戸 管理会社:日神管財(株) 管理形態:全部委託(日勤) 管理費:14,160円/月 修繕積立金:21,150円/月 分譲会社:(株)オプナムクリエーション 施工会社:(株)間組 ペット飼育:可(規約有) 駐車場:13,000円/月 バイク置場:1,000円/月 駐輪場:100円〜300円/月 現況:空室 引渡:相談 :*:…╋ 新規内装リノベーション内容 ╋…♪:* キッチン(食洗器・浄水器) トイレ フローリング クロス フロアタイル 建具 照明器具 給湯器 ハウスクリーニング ※2024年9月完成済 |
| 採光面 | 南 | 取引態様 | 仲介 |
|---|---|---|---|
| 現況 | 空家 | 引渡し | 相談 |
| 総戸数 | 29戸 | 構造 | RC造 |
| テラス面積 | - | 専用庭面積 | - |
| 駐車場 | 有:13,000円/月 | 駐輪場 | 有:100円/月 |
| 建物権利 | 区分所有 | 土地権利 | 所有権の共有 |
| 用途地域 | - - - | 管理態様 | 管理形態:委託(通勤) 管理組合:あり 管理会社:日神管財 |
| 小学校区 | 中野区立武蔵台小学校 (東京都中野区) この学区の他の物件を見る |
中学校区 | 北中野中学校 (東京都中野区) この学区の他の物件を見る |
| 情報更新日 | 2025年01月05日 | 次回更新日 | 2025年01月19日 |
電話をかける(携帯・PHS可)
0120-033-223
「ホームページを見た」とお伝え下さい。
お問い合わせ番号をお伝えください
RHS-c-23900
| 年利率 | % |
||
|---|---|---|---|
| ボーナス払い | 返済年数 | ||
| 頭金 | 直接入力する | 万円 | |

毎月のご返済額 |
ボーナス(×年2回) |
物件価格成約済 |
電話でお問い合わせ
ゼロネクスト
|
電話をかける 0120-033-223 ※「ホームページを見た」とお伝えください。 |
お問い合わせ番号をお伝えください RHS-c-23900 |
|---|
【仲介手数料が無料になる物件です】
マンション購入時の諸費用を節約する事が可能です。
新規内装リノベーション済の綺麗な室内。最上階メゾネットタイプ・大型ルーフバルコニー付。ペットと暮らせます。