| 価格 | 成約済 ![]() |
||||||
|---|---|---|---|---|---|---|---|
| 所在地 | 東京都大田区東雪谷1-1-18
この地域周辺の物件を見る |
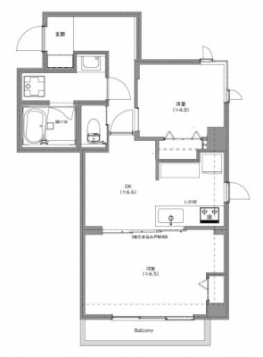
専有面積 | 46.79u | 間取り | 2DK (DK6.6/洋室6.5/洋室4) | ||
| 交通 | 東急池上線 洗足池/徒歩2分
東急池上線 石川台/徒歩9分 |
管理費等 | 14,970円 | 修繕積立金 | 16,000円 | 所在階/階数 | 3階/地上6階建 | 築年月 | 1984年1月築 | バルコニー面積 | 4.22m² |
電話をかける(携帯・PHS可)
0120-033-223
「ホームページを見た」とお伝え下さい。
お問い合わせ番号をお伝えください
RHS-c-24039
| 設備・特徴 |
|
|---|---|
| 物件のおすすめ ポイント |
*~*:,_,:*~*:,_,:*~*:,_,:* …╋ ライオンズマンション洗足池 ╋… *~*:,_,:*~*:,_,:*~*:,_,:* .:*:…╋ 交通アクセス ╋…♪.:*:’ 東急池上線「洗足池」駅徒歩2分 東急池上線「石川台」駅徒歩9分 .:*:…╋ 特徴・ポイント ╋…♪.:*:’゜ 新耐震基準マンション エレベーター完備 3階部分・角部屋 食器洗浄乾燥機付 浴室換気乾燥機付 アフターサービス保証 所在地:東京都大田区東雪谷1-1-18 専有面積:46.79m2 バルコニー面積:4.22m2 部屋数・間取り:2DK 築年月:昭和59年1月 土地権利:所有権 構造:SRC・RC造地上6階建 所在階:3階部分 総戸数:20戸 管理会社:(株)大京アステージ 管理形態:全部委託(日勤) 管理費:14,970円/月 修繕積立金:16,000円/月 施工会社:(株)鴻池組 ペット飼育:不可 駐車場:22,000円/月 バイク置場:有 駐輪場:有 現況:空室 引渡:相談 :*:…╋ 新規内装リノベーション内容 ╋…♪:* キッチン(タッチレス水栓・食洗機付) 浴室(浴室乾燥機付) トイレ(壁リモコン仕様) 洗面化粧台(ワイド仕様) ガス給湯器(追い焚き機能付) 全箇所照明交換(LED) 建具 フローリング クロス クッションフロア 玄関タイル エアコン先行配管 ハウスクリーニング ※2024年11月完成 |
| 採光面 | - | 取引態様 | 仲介 |
|---|---|---|---|
| 現況 | 空家 | 引渡し | 相談 |
| 総戸数 | 20戸 | 構造 | SRC造 |
| テラス面積 | - | 専用庭面積 | - |
| 駐車場 | 有:22,000円/月 | 駐輪場 | 有 |
| 建物権利 | 区分所有 | 土地権利 | 所有権の共有 |
| 用途地域 | - - - | 管理態様 | 管理形態:委託(通勤) 管理組合:あり 管理会社:大京アステージ |
| 小学校区 | 大田区立洗足池小学校 (東京都大田区) この学区の他の物件を見る |
中学校区 | 石川台中学校 (東京都大田区) この学区の他の物件を見る |
| 情報更新日 | 2025年02月28日 | 次回更新日 | 2025年03月14日 |
電話をかける(携帯・PHS可)
0120-033-223
「ホームページを見た」とお伝え下さい。
お問い合わせ番号をお伝えください
RHS-c-24039
| 年利率 | % |
||
|---|---|---|---|
| ボーナス払い | 返済年数 | ||
| 頭金 | 直接入力する | 万円 | |

毎月のご返済額 |
ボーナス(×年2回) |
物件価格成約済 |
電話でお問い合わせ
ゼロネクスト
|
電話をかける 0120-033-223 ※「ホームページを見た」とお伝えください。 |
お問い合わせ番号をお伝えください RHS-c-24039 |
|---|
【仲介手数料が無料になる物件です】
マンション購入時の諸費用を節約する事が可能です。
新規内装リノベーションの綺麗な室内。新耐震基準マンション・「洗足池駅」徒歩2分「石川台駅」徒歩9分です。