| 価格 | 2,480万円値下がり ![]() |
||||||
|---|---|---|---|---|---|---|---|
| 所在地 | 神奈川県川崎市中原区新丸子東2-924-8
この地域周辺の物件を見る |
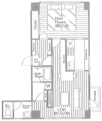
専有面積 | 55.04u | 間取り | 1LDK (LDK15/洋室8.5) | ||
| 交通 | JR横須賀線 武蔵小杉/徒歩2分
JR南武線 武蔵小杉/徒歩2分 東急東横線 武蔵小杉/徒歩3分 |
管理費等 | 14,000円 | 修繕積立金 | 16,000円 | 所在階/階数 | 10階/地上11階建 | 築年月 | 1974年5月築 | バルコニー面積 | - |
電話をかける(携帯・PHS可)
0120-033-223
「ホームページを見た」とお伝え下さい。
お問い合わせ番号をお伝えください
RHS-c-28391
| 設備・特徴 |
|
|---|---|
| 物件のおすすめ ポイント |
*~*:,_,:*~*:,_,:*~*:,_,:* …╋ 武蔵小杉サマリアマンション ╋… *~*:,_,:*~*:,_,:*~*:,_,:* .:*:…╋ 交通アクセス ╋…♪.:*:’ JR横須賀線「武蔵小杉」駅徒歩2分 JR南武線「武蔵小杉」駅徒歩2分 湘南新宿ライン「武蔵小杉」駅徒歩2分 東急東横線「武蔵小杉」駅徒歩3分 東急目黒線「武蔵小杉」駅徒歩3分 .:*:…╋ 特徴・ポイント ╋…♪.:*:’゜ 10階部分・南東角部屋 陽当り・眺望良好 カウンターキッチン エアコン設置(1台) エレベーター完備 ペットと暮らせます 所在地:川崎市中原区新丸子東2-924-8 専有面積:55.04m2 バルコニー面積:無 部屋数・間取り:1LDK 築年月:昭和49年5月 土地権利:旧法地上権 借地期限:2034年5月迄 地代:管理費に含む 構造:SRC造地上11階建 所在階:10階部分 総戸数:22戸 管理会社:日本ハウズイング(株) 管理形態:全部委託(巡回) 管理費:14,000円/月 修繕積立金:16,000円/月 ペット飼育:可(規約有) 現況:空室 引渡:相談 :*:…╋ 新規内装リノベーション内容 ╋…♪:* 全室クロス貼替 全室照明交換 LDK、洋室フローリング貼替 ユニットバス交換 システムキッチン交換 洗面化粧台交換 洗濯パン交換 建具交換 エアコン1基新設 TVモニタ付インターホン ハウスクリーニング ※2025年6月完成済 |
| 採光面 | 東南 | 取引態様 | 仲介 |
|---|---|---|---|
| 現況 | 空家 | 引渡し | 相談 |
| 総戸数 | 22戸 | 構造 | SRC造 |
| テラス面積 | - | 専用庭面積 | - |
| 駐車場 | なし | 駐輪場 | - |
| 建物権利 | 区分所有 | 土地権利 | (旧法)地上権 借地期間:2034年5月迄 借地料:管理費に含む |
| 用途地域 | - - - | 管理態様 | 管理形態:委託(巡回) 管理組合:あり 管理会社:日本ハウズイング |
| 小学校区 | 川崎市立上丸子小学校 (神奈川県川崎市中原区) この学区の他の物件を見る |
中学校区 | 中原中学校 (神奈川県川崎市中原区) この学区の他の物件を見る |
| 情報更新日 | 2025年11月08日 | 次回更新日 | 2025年11月22日 |
電話をかける(携帯・PHS可)
0120-033-223
「ホームページを見た」とお伝え下さい。
お問い合わせ番号をお伝えください
RHS-c-28391
| 年利率 | % |
||
|---|---|---|---|
| ボーナス払い | 返済年数 | ||
| 頭金 | 直接入力する | 万円 | |

毎月のご返済額 |
ボーナス(×年2回) |
物件価格2,480万円 |
電話でお問い合わせ
ゼロネクスト
|
電話をかける 0120-033-223 ※「ホームページを見た」とお伝えください。 |
お問い合わせ番号をお伝えください RHS-c-28391 |
|---|
【仲介手数料約89万円が無料になる物件です】
マンション購入時の諸費用を節約する事が可能です。
新規内装リノベーション済の綺麗な室内。10階南東角部屋につき陽当たり良好。ペット飼育可・「武蔵小杉駅」徒歩2分の好立地です。