| 価格 | 成約済 ![]() |
||||||
|---|---|---|---|---|---|---|---|
| 所在地 | 東京都板橋区熊野町46-7
この地域周辺の物件を見る |
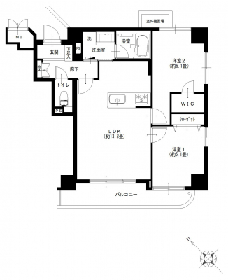
専有面積 | 55.81u | 間取り | 2LDK (LDK13.3/洋室6.1/洋室5.1) | ||
| 交通 | 東武東上線 大山/徒歩6分
|
管理費等 | 12,400円 | 修繕積立金 | 16,740円 | 所在階/階数 | 4階/地上14階建 | 築年月 | 1995年11月築 | バルコニー面積 | 6.95m² |
電話をかける(携帯・PHS可)
0120-033-223
「ホームページを見た」とお伝え下さい。
お問い合わせ番号をお伝えください
RHS-c-28411
| 設備・特徴 |
|
|---|---|
| 物件のおすすめ ポイント |
*~*:,_,:*~*:,_,:*~*: …╋ 大山ダイカンプラザB棟 ╋… *~*:,_,:*~*:,_,:*~*: .:*:…╋ 交通アクセス ╋…♪.:*:’ 東武東上線「大山」駅徒歩6分 .:*:…╋ 特徴・ポイント ╋…♪.:*:’゜ 住宅ローン減税適合 フラット35適合 新耐震基準マンション オートロック完備 防犯カメラ完備 エレベーター完備 大規模修繕工事実施済 南西×南東角部屋 陽当たり・通風良好 収納豊富なWIC有 浄水器付キッチン 食器洗浄乾燥機付 浴室換気乾燥機付 アフターサービス保証 所在地:東京都板橋区熊野町46-7 専有面積:55.81m2 バルコニー面積:6.95m2 部屋数・間取り:2LDK 築年月:平成7年11月 土地権利:所有権 構造:SRC造地上11階建 所在階:4階部分 総戸数:77戸 管理会社:(株)東急コミュニティー 管理形態:全部委託(日勤) 管理費:12,400円/月 修繕積立金:16,740円/月 分譲会社:ダイカンホーム(株) 施工会社:三平建設(株) ペット飼育:不可 駐車場:25,000円〜27,000円/月 バイク置場:3,000円/月 駐輪場:400円〜500円/月 現況:空室 引渡:相談 :*:…╋ 新規内装リノベーション内容 ╋…♪:* システムキッチン交換 ユニットバス交換 洗面台交換 トイレ交換 全室クロス張替 全フローリング張替 全建具交換 CF張替 下足入れ交換 洗濯水栓器具交換 防水パン交換 スイッチパネル設置 ダウンライト設置 照明器具設置 玄関人感センサー設置 ※2025年10月完成 |
| 採光面 | 南西 | 取引態様 | 仲介 |
|---|---|---|---|
| 現況 | 空家 | 引渡し | 相談 |
| 総戸数 | 77戸 | 構造 | SRC造 |
| テラス面積 | - | 専用庭面積 | - |
| 駐車場 | 有:25,000円/月 | 駐輪場 | 有:400円/月 |
| 建物権利 | 区分所有 | 土地権利 | 所有権の共有 |
| 用途地域 | 商業地域 - - | 管理態様 | 管理形態:委託(通勤) 管理組合:あり 管理会社:東急コミュニティー |
| 小学校区 | 板橋区立板橋第七小学校 (東京都板橋区) この学区の他の物件を見る |
中学校区 | 板橋第一中学校 (東京都板橋区) この学区の他の物件を見る |
| 情報更新日 | 2026年01月26日 | 次回更新日 | 2026年02月09日 |
電話をかける(携帯・PHS可)
0120-033-223
「ホームページを見た」とお伝え下さい。
お問い合わせ番号をお伝えください
RHS-c-28411
| 年利率 | % |
||
|---|---|---|---|
| ボーナス払い | 返済年数 | ||
| 頭金 | 直接入力する | 万円 | |

毎月のご返済額 |
ボーナス(×年2回) |
物件価格成約済 |
電話でお問い合わせ
ゼロネクスト
|
電話をかける 0120-033-223 ※「ホームページを見た」とお伝えください。 |
お問い合わせ番号をお伝えください RHS-c-28411 |
|---|
【仲介手数料が無料になる物件です】
マンション購入時の諸費用を節約する事が可能です。
新規内装リノベーションの綺麗な室内。オートロック完備・2024年大規模修繕工事実施済・新耐震基準マンションです。