| 価格 | 成約済 ![]() |
||||||
|---|---|---|---|---|---|---|---|
| 所在地 | 東京都大田区大森南1-20-14
この地域周辺の物件を見る |
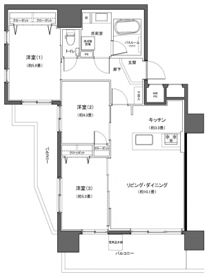
専有面積 | 67.25u | 間取り | 3LDK (LDK13.4/洋室5.9/洋室5.2/洋室4.3) | ||
| 交通 | 京急本線 梅屋敷/徒歩16分
|
管理費等 | 11,770円 | 修繕積立金 | 13,450円 | 所在階/階数 | 6階/地上15階建 | 築年月 | 2009年2月築 | バルコニー面積 | 17.4m² |
電話をかける(携帯・PHS可)
0120-033-223
「ホームページを見た」とお伝え下さい。
お問い合わせ番号をお伝えください
RHS-c-28460
| 設備・特徴 |
|
|---|---|
| 物件のおすすめ ポイント |
*~*:,_,:*~*:,_,:*~*:,_,:* …╋ ミオカステーロ大森 サウスフォート ╋… *~*:,_,:*~*:,_,:*~*:,_,:* .:*:…╋ 交通アクセス ╋…♪.:*:’ 京急本線「梅屋敷」駅徒歩16分 .:*:…╋ 特徴・ポイント ╋…♪.:*:’゜ 住宅ローン減税適合 フラット35適合 エレベーター完備 オートロック完備 防犯カメラ完備 ペットと暮らせます 6階部分・南西角部屋 陽当り・眺望良好 食器洗浄乾燥機付 浴室換気乾燥機付 床暖房完備(LD部) 所在地:東京都大田区大森南1-20-14 専有面積:67.25m2 バルコニー面積:17.40m2 部屋数・間取り:3LDK 築年月:平成21年2月 土地権利:所有権 構造:SRC造地上15階建 所在階:6階部分 総戸数:45戸 管理会社:(株)エム・シー・サービス 管理形態:全部委託(日勤) 管理費:11,770円/月 修繕積立金:13,450円/月 分譲会社:山田建設(株) (株)ハウジングプラザ 施工会社:山田建設(株) ペット飼育:可(規約有) 駐車場:2,500円〜9,000円/月 バイク置場:1,000円〜1,500円/月 駐輪場:300円/月 現況:空室 引渡:相談 :*:…╋ 新規内装リノベーション内容 ╋…♪:* 電気温水器交換 システムキッチン交換 ユニットバス交換 洗面化粧台交換 トイレ交換 全室クロス張替 全室フローリング張替 全室建具交換 フロアタイル張替 配管更新 全室照明設置 ハウスクリーニング |
| 採光面 | 南西 | 取引態様 | 仲介 |
|---|---|---|---|
| 現況 | 空家 | 引渡し | 相談 |
| 総戸数 | 45戸 | 構造 | SRC造 |
| テラス面積 | - | 専用庭面積 | - |
| 駐車場 | 有:2,500円/月 | 駐輪場 | 有:300円/月 |
| 建物権利 | 区分所有 | 土地権利 | 所有権の共有 |
| 用途地域 | 近隣商業地域 準工業地域 - | 管理態様 | 管理形態:委託(通勤) 管理組合:あり 管理会社:エム・シー・サービス |
| 小学校区 | 大田区立東糀谷小学校 (東京都大田区) この学区の他の物件を見る |
中学校区 | 糀谷中学校 (東京都大田区) この学区の他の物件を見る |
| 情報更新日 | 2026年01月19日 | 次回更新日 | 2026年02月02日 |
電話をかける(携帯・PHS可)
0120-033-223
「ホームページを見た」とお伝え下さい。
お問い合わせ番号をお伝えください
RHS-c-28460
| 年利率 | % |
||
|---|---|---|---|
| ボーナス払い | 返済年数 | ||
| 頭金 | 直接入力する | 万円 | |

毎月のご返済額 |
ボーナス(×年2回) |
物件価格成約済 |
電話でお問い合わせ
ゼロネクスト
|
電話をかける 0120-033-223 ※「ホームページを見た」とお伝えください。 |
お問い合わせ番号をお伝えください RHS-c-28460 |
|---|
【仲介手数料が無料になる物件です】
マンション購入時の諸費用を節約する事が可能です。
新規内装リノベーション済の綺麗な室内。家具・エアコン付。オートロック完備・ペットと暮らせます。