| 価格 | 2,498万円値下がり ![]() |
||||||
|---|---|---|---|---|---|---|---|
| 所在地 | 神奈川県横浜市保土ケ谷区狩場町422-10
この地域周辺の物件を見る |
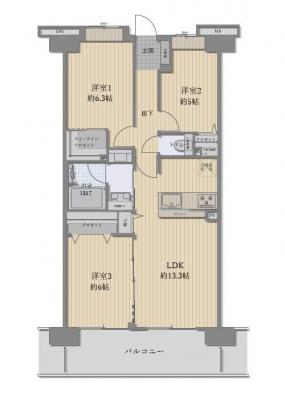
専有面積 | 67.2u | 間取り | 3LDK (LDK13.3/洋室6.3/洋室6/洋室5) | ||
| 交通 | JR横須賀線 保土ヶ谷/東伸ふれあい公園 バス13分 停歩2分
湘南新宿ライン宇須 保土ヶ谷/東伸ふれあい公園 バス13分 停歩2分 |
管理費等 | 5,400円 | 修繕積立金 | 20,290円 | 所在階/階数 | 5階/地上5階建 | 築年月 | 1998年9月築 | バルコニー面積 | 10.8m² |
電話をかける(携帯・PHS可)
0120-033-223
「ホームページを見た」とお伝え下さい。
お問い合わせ番号をお伝えください
RHS-c-28825
| 設備・特徴 |
|
|---|---|
| 物件のおすすめ ポイント |
*~*:,_,:*~*:,_,:*~*:,_,:* …╋ コスモ保土ヶ谷パークフォルム ╋… *~*:,_,:*~*:,_,:*~*:,_,:* .:*:…╋ 交通アクセス ╋…♪.:*:’ JR横須賀線「保土ヶ谷」駅バス13分 「東伸ふれあい公園」バス停下車徒歩2分 湘南新宿ライン「保土ヶ谷」駅バス13分 「東伸ふれあい公園」バス停下車徒歩2分 .:*:…╋ 特徴・ポイント ╋…♪.:*:’゜ 新耐震基準マンション エレベーター完備 オートロック完備 宅配ボックス完備 大規模修繕工事実施済 最上階・南東向き 陽当り・眺望良好 収納豊富なWIC有 各室収納スペース有 所在地:横浜市保土ヶ谷区狩場町422-10 専有面積:67.2m2 バルコニー面積:10.8m2 部屋数・間取り:3LDK 築年月:1998年9月 土地権利:所有権 構造:RC造地上5階建 所在階:5階部分 総戸数:71戸 管理会社:大和ライフネクスト(株) 管理形態:全部委託(日勤) 管理費:5,400円/月 修繕積立金:20,290円/月 分譲会社:(株)リクルートコスモス 施工会社:(株)大本組 ペット飼育:不可 駐車場:有 駐輪場:有 現況:空室 引渡:相談 :*:…╋ 新規内装リフォーム内容 ╋…♪:* クロス張替 システムキッチン交換 ユニットバス交換 洗面化粧台交換 下駄箱交換 建具交換 トイレ交換 給湯器交換 巾木交換 スイッチコンセント交換 ハウスクリーニング ※2025年12月完成 |
| 採光面 | 東南 | 取引態様 | 仲介 |
|---|---|---|---|
| 現況 | 空家 | 引渡し | 相談 |
| 総戸数 | 71戸 | 構造 | RC造 |
| テラス面積 | - | 専用庭面積 | - |
| 駐車場 | 有 | 駐輪場 | 有 |
| 建物権利 | 区分所有 | 土地権利 | 所有権の共有 |
| 用途地域 | 第一種中高層住居専用地域 - - | 管理態様 | 管理形態:委託(通勤) 管理組合:あり 管理会社:大和ライフネクスト |
| 小学校区 | 横浜市立瀬戸ケ谷小学校 (神奈川県横浜市保土ケ谷区) この学区の他の物件を見る |
中学校区 | 岩崎中学校 (神奈川県横浜市保土ケ谷区) この学区の他の物件を見る |
| 情報更新日 | 2026年02月14日 | 次回更新日 | 2026年02月28日 |
電話をかける(携帯・PHS可)
0120-033-223
「ホームページを見た」とお伝え下さい。
お問い合わせ番号をお伝えください
RHS-c-28825
| 年利率 | % |
||
|---|---|---|---|
| ボーナス払い | 返済年数 | ||
| 頭金 | 直接入力する | 万円 | |

毎月のご返済額 |
ボーナス(×年2回) |
物件価格2,498万円 |
電話でお問い合わせ
ゼロネクスト
|
電話をかける 0120-033-223 ※「ホームページを見た」とお伝えください。 |
お問い合わせ番号をお伝えください RHS-c-28825 |
|---|
【仲介手数料約90万円が無料になる物件です】
マンション購入時の諸費用を節約する事が可能です。
新規内装フルリフォームの綺麗な室内。最上階の南東角部屋・眺望良好。宅配ボックス完備・2025年大規模修繕工事実施済です。