| 価格 | 成約済 ![]() |
||||||
|---|---|---|---|---|---|---|---|
| 所在地 | 東京都品川区荏原2-2-14
この地域周辺の物件を見る |
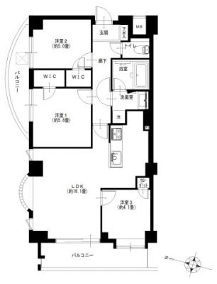
専有面積 | 69.15u | 間取り | 3LDK (LDK16.1/洋室5.8/洋室5.2/洋室4.1) | ||
| 交通 | 東急池上線 戸越銀座/徒歩5分
都営浅草線 戸越/徒歩8分 東急目黒線 武蔵小山/徒歩13分 |
管理費等 | 14,870円 | 修繕積立金 | 26,550円 | 所在階/階数 | 2階/地上7階建 | 築年月 | 2001年2月築 | バルコニー面積 | 12.75m² |
電話をかける(携帯・PHS可)
0120-033-223
「ホームページを見た」とお伝え下さい。
お問い合わせ番号をお伝えください
RHS-c-28871
| 設備・特徴 |
|
|---|---|
| 物件のおすすめ ポイント |
*~*:,_,:*~*:,_,:*~*:,_,:* …╋ ジェイパーク戸越銀座 ブランシェール ╋… *~*:,_,:*~*:,_,:*~*:,_,:* .:*:…╋ 交通アクセス ╋…♪.:*:’ 東急池上線「戸越銀座」駅徒歩5分 都営浅草線「戸越」駅徒歩8分 東急目黒線「武蔵小山」駅徒歩13分 .:*:…╋ 特徴・ポイント ╋…♪.:*:’゜ フラット35適合 住宅ローン減税適合 新耐震基準マンション エレベーター完備 オートロック完備 宅配ボックス完備 防犯カメラ完備 ペットと暮らせます 2階部分・角部屋 収納豊富なWIC有 床暖房完備(LD部) 浄水器付キッチン 食器洗浄乾燥機付 浴室換気乾燥機付 アフターサービス保証 所在地:東京都品川区荏原2-2-14 専有面積:69.15m2 バルコニー面積:12.75m2 部屋数・間取り:3LDK 築年月:2001年2月 土地権利:所有権 構造:RC造地上7階建 所在階:2階部分 総戸数:42戸 管理会社:(株)大京アステージ 管理形態:全部委託(日勤) 管理費:14,870円/月 修繕積立金:26,550円/月 分譲会社:(株)ジョイント・コーポレーション 施工会社:(株)松村組 ペット飼育:可(規約有) 駐車場:28,000円〜31,000円/月 駐輪場:300円/月 現況:空室 引渡:相談 :*:…╋ 新規内装リノベーション内容 ╋…♪:* システムキッチン交換 ユニットバス交換 洗面台交換 トイレ交換 全室クロス張替 全フローリング張替 全建具交換 CF張替 下足入れ交換 洗濯水栓器具交換 防水パン交換 スイッチパネル設置 ダウンライト設置 照明器具設置 玄関人感センサー設置 ※2025年10月完成済 |
| 採光面 | 北西 | 取引態様 | 仲介 |
|---|---|---|---|
| 現況 | 空家 | 引渡し | 相談 |
| 総戸数 | 42戸 | 構造 | RC造 |
| テラス面積 | - | 専用庭面積 | - |
| 駐車場 | 有:28,000円/月 | 駐輪場 | 有:300円/月 |
| 建物権利 | 区分所有 | 土地権利 | 所有権の共有 |
| 用途地域 | 準工業地域 - - | 管理態様 | 管理形態:委託(通勤) 管理組合:あり 管理会社:大京アステージ |
| 小学校区 | 京陽小学校 (東京都品川区) この学区の他の物件を見る |
中学校区 | 戸越台中学校 (東京都品川区) この学区の他の物件を見る |
| 情報更新日 | 2026年01月28日 | 次回更新日 | 2026年02月11日 |
電話をかける(携帯・PHS可)
0120-033-223
「ホームページを見た」とお伝え下さい。
お問い合わせ番号をお伝えください
RHS-c-28871
| 年利率 | % |
||
|---|---|---|---|
| ボーナス払い | 返済年数 | ||
| 頭金 | 直接入力する | 万円 | |

毎月のご返済額 |
ボーナス(×年2回) |
物件価格成約済 |
電話でお問い合わせ
ゼロネクスト
|
電話をかける 0120-033-223 ※「ホームページを見た」とお伝えください。 |
お問い合わせ番号をお伝えください RHS-c-28871 |
|---|
【仲介手数料が無料になる物件です】
マンション購入時の諸費用を節約する事が可能です。
新規内装リノベーション済の綺麗な室内。目黒線「武蔵小山駅」徒歩圏内・宅配ボックス完備・ペットと暮らせます。