| 価格 | 成約済 ![]() |
||||||
|---|---|---|---|---|---|---|---|
| 所在地 | 東京都江東区東砂8-5-7
この地域周辺の物件を見る |
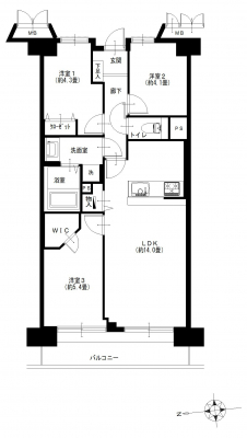
専有面積 | 61.19u | 間取り | 3LDK (LDK14/洋室5.4/洋室4.3/洋室4.1) | ||
| 交通 | 東京メトロ東西線 南砂町/徒歩10分
|
管理費等 | 8,240円 | 修繕積立金 | 12,240円 | 所在階/階数 | 2階/地上13階建 | 築年月 | 1986年9月築 | バルコニー面積 | 7.84m² |
電話をかける(携帯・PHS可)
0120-033-223
「ホームページを見た」とお伝え下さい。
お問い合わせ番号をお伝えください
RHS-c-29800
| 設備・特徴 |
|
|---|---|
| 物件のおすすめ ポイント |
*~*:,_,:*~*:,_,:*~*:,_,:* …╋ ツインシティ弐番館アルス東砂 ╋… *~*:,_,:*~*:,_,:*~*:,_,:* .:*:…╋ 交通アクセス ╋…♪.:*:’ 東京メトロ東西線「南砂町」駅徒歩10分 .:*:…╋ 特徴・ポイント ╋…♪.:*:’゜ フラット35適合物件 新耐震基準マンション ビッグコミュニティ 長期修繕計画書有 大規模修繕工事実施済 エレベーター完備 防犯カメラ完備 ペット飼育可(規約有) 2階部分・西向き 浄水器付キッチン 浴室換気乾燥機付 収納豊富なWIC有 アフターサービス保証 所在地:東京都江東区東砂8-5-7 専有面積:61.19m2 バルコニー面積:7.84m2 部屋数・間取り:3LDK 築年月:昭和61年9月 土地権利:旧法地上権 借地期限:2045年3月7日迄 借地料:3,940円/月 構造:SRC造地上13階建 所在階:2階部分 総戸数:113戸 管理会社:(株)長谷工コミュニティ 管理形態:全部委託(日勤) 管理費:8,240円/月 修繕積立金:12,240円/月 分譲会社:東急不動産(株) 施工会社:東海興業(株) ペット飼育:可(規約有) 事務所利用:不可 駐車場:23,000円/月 バイク置場:3,500円/月 駐輪場:2,400円/年 現況:空室 引渡:相談 令和2年9月外部鉄骨階段他塗装工事 令和2年8月バルコニー手摺補修他工事 平成27年6月EVリニューアル工事 平成22年11月大規模修繕工事 平成19年1月共用給水管更新工事 :*:…╋ 新規内装リノベーション内容 ╋…♪:* システムキッチン交換 ユニットバス交換 洗面台交換 トイレ交換 全室クロス張替 全フローリング張替 全建具交換 CF張替 下足入れ交換 洗濯水栓器具交換 防水パン交換 スイッチパネル設置 ダウンライト設置 照明器具設置 インターフォン交換 ※2026年1月完成済 .:*:…╋ Life Information ╋…♪.:*:’ イオンスタイル:徒歩6分 ワイズディスカ:徒歩8分 ダイエー:徒歩13分 セブンイレブン:徒歩3分 どらっぐぱぱす:徒歩8分 江東東砂八郵便局:徒歩6分 区立江東図書館:徒歩8分 区立第五砂町幼稚園:徒歩6分 区立第五砂町小学校:徒歩8分 区立第二砂町中学校:徒歩5分 |
| 採光面 | 西 | 取引態様 | 仲介 |
|---|---|---|---|
| 現況 | 空家 | 引渡し | 相談 |
| 総戸数 | 113戸 | 構造 | SRC造 |
| テラス面積 | - | 専用庭面積 | - |
| 駐車場 | 有:23,000円/月 | 駐輪場 | 有:200円/月 |
| 建物権利 | 区分所有 | 土地権利 | (旧法)地上権 借地期間:2045年3月7日迄 借地料:3,940円/月 |
| 用途地域 | 準工業地域 - - | 管理態様 | 管理形態:委託(通勤) 管理組合:あり 管理会社:長谷工コミュニティ |
| 小学校区 | 江東区立第五砂町小学校 (東京都江東区) この学区の他の物件を見る |
中学校区 | 第二南砂中学校 (東京都江東区) この学区の他の物件を見る |
| 情報更新日 | 2026年04月02日 | 次回更新日 | 2026年04月16日 |
電話をかける(携帯・PHS可)
0120-033-223
「ホームページを見た」とお伝え下さい。
お問い合わせ番号をお伝えください
RHS-c-29800
| 年利率 | % |
||
|---|---|---|---|
| ボーナス払い | 返済年数 | ||
| 頭金 | 直接入力する | 万円 | |

毎月のご返済額 |
ボーナス(×年2回) |
物件価格成約済 |
電話でお問い合わせ
ゼロネクスト
|
電話をかける 0120-033-223 ※「ホームページを見た」とお伝えください。 |
お問い合わせ番号をお伝えください RHS-c-29800 |
|---|
【仲介手数料が無料になる物件です】
マンション購入時の諸費用を節約する事が可能です。
新規内装リノベーション済の綺麗な室内。東急不動産(株)旧分譲・2025年大規模修繕工事実施済・ペットと暮らせます。