【仲介手数料無料】グレーシアシティ横濱いずみ中央ステーションアリーナフロントコート 4,690万円 神奈川県横浜市泉区和泉中央南5-12-1の中古マンション||分譲マンション情報|住まいネクスト株式会社

仲介手数料無料の中古マンション専門 ゼロネクストへのお問い合わせ
  • ゼロネクストの不動産売却実績
  • ゼロネクストが仲介手数料無料な理由
  • 住まいネクスト株式会社について
  • ログイン
  • 会員登録
  • ゼロネクストへメールでお問い合わせ
>
>
中古マンション > 横浜市泉区 > 相鉄いずみ野線 >
グレーシアシティ横濱いずみ中央ステーションアリーナフロントコート

中古マンション

グレーシアシティ横濱いずみ中央ステーションアリーナフロントコート お気に入り
価格 4,690万円値下がり ローンシミュレーション
所在地 神奈川県横浜市泉区和泉中央南5-12-1
この地域周辺の物件を見る
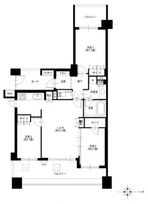
専有面積 72.71u 間取り 3LDK (LDK15/洋室7/洋室5.5/洋室5)
交通
相鉄いずみ野線 いずみ中央/徒歩1分
管理費等 13,510円 修繕積立金 16,000円
所在階/階数 4階/地上10階 地下1階建 築年月 2005年6月築 バルコニー面積 21m²
ここがおすすめ

【仲介手数料約161万円が無料になる物件です】
マンション購入時の諸費用を節約する事が可能です。
新規内装リノベーション済の綺麗な室内。ペット飼育可・宅配ボックス完備・総戸数278戸のビッグコミュニティ。


  • 現地外観写真 -
  • 間取り図 -
  • エントランス -
  • 玄関 -
  • 玄関 -
  • リビング -
  • リビング -
  • リビング -
  • 洋室 -
  • 洋室 -
  • 洋室 -
  • 洋室 -
  • 洋室 -
  • 洋室 -
  • 収納 -
  • 収納 -
  • 収納 -
  • キッチン -
  • 洗面台・洗面所 -
  • 洗面台・洗面所 -
  • トイレ -
  • 浴室 -
お問い合わせ、資料請求、見学のお申し込みはこちらから

電話をかける(携帯・PHS可)
0120-033-223
「ホームページを見た」とお伝え下さい。

お問い合わせ番号をお伝えください
RHS-c-29050

内見予約
お問合せ
内見予約・お問い合わせ

セールスポイント

設備・特徴
  • 仲介手数料無料
  • バイク置き場
  • ペット飼育相談可
  • アフターサービス保証付
  • 新耐震基準適合物件
  • フラット35適合物件
  • CATV
  • 駐輪場
  • 駐車場
  • 宅配ボックス
  • BS対応
  • 防犯カメラ
  • オートロック
  • エレベーター
  • トランクルーム
  • 床暖房(一部)
  • 洗浄便座付トイレ
  • 室内洗濯機置場
  • 浴室換気乾燥機付
  • TVモニタ付インターホン
  • 給湯器(追焚機能付)
  • フローリング
  • 洗面化粧台
  • 浄水器一体型水栓
  • ウォークインクローゼット
物件のおすすめ
ポイント
*~*:,_,:*~*:,_,:*~*:,_,:*
…╋ グレーシアシティ横濱いずみ中央
ステーションアリーナフロントコート ╋…
*~*:,_,:*~*:,_,:*~*:,_,:*

.:*:…╋ 交通アクセス ╋…♪.:*:’ 

相鉄いずみ野線「いずみ中央」駅徒歩1分

.:*:…╋ 特徴・ポイント ╋…♪.:*:’゜

フラット35適合
新耐震基準マンション
ビッグコミュニティ
エレベーター完備
オートロック完備
宅配ボックス完備
防犯カメラ完備
ペット飼育可(規約有)
4階部分・東向き
収納豊富なWIC有
床暖房完備(LD部)
ディスポーザー付
浄水器付キッチン
浴室換気乾燥機付
アフターサービス保証

所在地:横浜市泉区和泉中央南5-12-1
専有面積:72.71m2
バルコニー面積:21.00m2
部屋数・間取り:3LDK
築年月:2005年6月
土地権利:所有権
構造:RC造地下1階付地上10階建
所在階:4階部分
総戸数:278戸
管理会社:(株)相鉄リビングサポート
管理形態:全部委託(日勤)
管理費:13,510円/月
修繕積立金:16,000円/月
分譲会社:相模鉄道(株)
施工会社:相鉄建設(株)
ペット飼育:可(規約有)
駐車場:5,500円〜8,000円/月
バイク置場:1,000円/月
駐輪場:100円〜200円/月
現況:空室
引渡:相談

:*:…╋ 新規内装リノベーション内容 ╋…♪:*

システムキッチン交換
トイレ交換
全室クロス張替
全フローリング張替
CF張替
下足入れ交換
洗濯水栓器具交換
防水パン交換
スイッチパネル設置
ダウンライト設置
照明器具設置
玄関人感センサー設置
※2025年10月完成済

物件概要

採光面 取引態様 仲介
現況 空家 引渡し 相談
総戸数 278戸 構造 RC造
テラス面積 - 専用庭面積 -
駐車場 有:5,500円/月 駐輪場 有:100円/月
建物権利 区分所有 土地権利 所有権の共有
用途地域 第一種住居地域 - - 管理態様 管理形態:委託(通勤)
管理組合:あり
管理会社:相鉄リビングサポート
小学校区 横浜市立中和田小学校
(神奈川県横浜市泉区)
この学区の他の物件を見る
中学校区 中和田中学校
(神奈川県横浜市泉区)
この学区の他の物件を見る
情報更新日 2025年12月23日 次回更新日 2026年01月06日
※各種情報と差異がある場合は現況優先となります
※物件情報の学区情報について
当サイト物件情報に記載されております通学区域(学区)情報は、国土数値情報ダウンロードサービスが提供する小学校区データ【2016年度】及び中学校区データ【2016年度】を元に加工したものですので、記載情報が現在の学区域と異なる場合がございます。
国土数値情報ダウンロードサービスのWEBサイト上で記述通り、データは必ずしも正確とは言えません。また、通学区域(学区)は毎年見直しの対象となりますので、そちらを踏まえ学区情報は参考としてご活用下さい。
お問い合わせ、資料請求、見学のお申し込みはこちらから

電話をかける(携帯・PHS可)
0120-033-223
「ホームページを見た」とお伝え下さい。

お問い合わせ番号をお伝えください
RHS-c-29050

内見予約
お問合せ
内見予約・お問い合わせ

この物件でローンシミュレーションする

年利率
ボーナス払い 返済年数
頭金 直接入力する 万円

毎月のご返済額

ボーナス(×年2回)

物件価格

4,690万円
※返済金額はあくまでも目安です。
  • こちらの物件を見たお客様はこんな物件もチェックしています。
  • お気に入り物件

同じ価格帯の物件はこちら

広さの近い物件はこちら

同じ小学校区の物件はこちら

電話でお問い合わせ
ゼロネクスト

電話をかける

0120-033-223

※「ホームページを見た」とお伝えください。
お問い合わせ番号をお伝えください
RHS-c-29050

お問い合わせ

お問い合わせ内容
お問合せ内容必須
【備考欄】
詳細な見学ご希望時間、ご質問、ご希望条件などがございましたらお聞かせ下さい。
(2000文字以内)
お客様情報
お名前必須
連絡先必須 メールアドレス

※ご記入いただいたメールアドレス宛てに、お問合せ内容の確認メールをお送りいたします。
※Yahoo!メールなどのフリーメールをご利用の場合、迷惑メールフォルダに入る場合があります。
 迷惑メールのフォルダ・設定等をご確認下さい。
電話番号
FAX(任意)
※ご入力いただいたお客さまの個人情報は、「個人情報のお取り扱いについて」に基づき適正に取り扱います。
必ずお読みになり、同意の上お問い合わせください。

お気軽にお問い合わせください

0120-033-223
物件番号 RHS-c-29050
※「ホームページを見た」
とお伝え下さい。

PAGE TOP

住まいネクスト株式会社 住まいネクスト株式会社ロゴ

〒143-0016

東京都 大田区大森北1-1-5 YK-16ビル 6F

JR京浜東北線「大森」駅北口出口から徒歩1分

※物件内覧の際は、現地でのお待ち合わせ・解散が可能です。
お電話でのお問い合わせはコチラ 03-6423-0433 営業時間 10:00〜20:30 定休日:水曜日・年末年始・夏季休暇

※ご案内中は電話に出られないこともございます。
   その際は折り返しお電話させて頂きます。