| 価格 | 3,790万円 ![]() |
||||||
|---|---|---|---|---|---|---|---|
| 所在地 | 神奈川県横浜市港北区箕輪町2-2-41
この地域周辺の物件を見る |
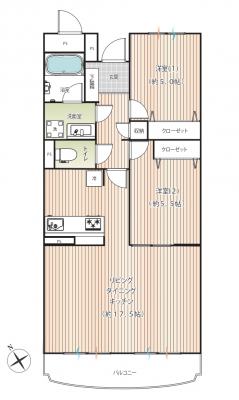
専有面積 | 62.7u | 間取り | 2LDK (LDK17.5/洋室5.5/洋室5) | ||
| 交通 | 東急東横線 日吉/徒歩8分
東急目黒線 日吉/徒歩8分 横浜市営地下鉄グリーンライン 日吉/徒歩8分 |
管理費等 | 8,500円 | 修繕積立金 | 10,000円 | 所在階/階数 | 1階/地上5階建 | 築年月 | 1981年3月築 | バルコニー面積 | 6.1m² |
電話をかける(携帯・PHS可)
0120-033-223
「ホームページを見た」とお伝え下さい。
お問い合わせ番号をお伝えください
RHS-c-29118
| 設備・特徴 |
|
|---|---|
| 物件のおすすめ ポイント |
*~*:,_,:*~*:,_,:* …╋ 日吉ハイツ ╋… *~*:,_,:*~*:,_,:* .:*:…╋ 交通アクセス ╋…♪.:*:’ 東急東横線「日吉」駅徒歩8分 東急目黒線「日吉」駅徒歩8分 東急新横浜線「日吉」駅徒歩8分 横浜市営地下鉄「日吉」駅徒歩8分 横浜市営地下鉄「日吉本町」駅徒歩17分 .:*:…╋ 特徴・ポイント ╋…♪.:*:’゜ 1階部分・南西向き 浄水器付キッチン 食器洗浄乾燥機付 浴室換気乾燥機付 各室収納スペース有 アフターサービス保証 所在地:横浜市港北区箕輪町2-2-41 専有面積:62.70m2 バルコニー面積:6.10m2 部屋数・間取り:2LDK 築年月:昭和56年3月 土地権利:所有権 構造:RC造地上5階建 所在階:1階部分 総戸数:29戸 管理会社:大成有楽不動産(株) 管理形態:全部委託(巡回) 管理費:8,500円/月 修繕積立金:10,000円/月 ペット飼育:不可 駐車場:15,000円/月 駐輪場:無償 現況:空室 引渡:相談 :*:…╋ 新規内装リノベーション内容 ╋…♪:* 給水・給湯配管新規交換 ユニットバス新規交換 システムキッチン新規交換 トイレ新規交換 防水パン新規交換 給湯器新規交換 下駄箱新規交換 クロス新規張替 網戸新規張替 カーテンレール新規交換 レースカーテン新規取付 浴室鏡新規交換 浴室水栓新規交換 浴槽新規交換 ガスコンロ新規交換 レンジフード新規交換 食洗機新規取付 キッチン水栓新規交換 洗浄便座新規取付 洗濯水栓新規交換 木部塗装 照明器具新規交換 分電盤新規交換 スイッチ・コンセント新規交換 人感センサー新規取付 ハウスクリーニング フロアタイル新規張替 エアコン1台設置 コートフック設置 ホスクリーン設置 ピクチャーレール設置 ※2025年11月完成済 |
| 採光面 | 南西 | 取引態様 | 仲介 |
|---|---|---|---|
| 現況 | 空家 | 引渡し | 相談 |
| 総戸数 | 29戸 | 構造 | RC造 |
| テラス面積 | - | 専用庭面積 | - |
| 駐車場 | 有:15,000円/月 | 駐輪場 | 有 |
| 建物権利 | 区分所有 | 土地権利 | 所有権の共有 |
| 用途地域 | 準住居地域 - - | 管理態様 | 管理形態:委託(巡回) 管理組合:あり 管理会社:大成有楽不動産 |
| 小学校区 | 横浜市立日吉台小学校 (神奈川県横浜市港北区) この学区の他の物件を見る |
中学校区 | 日吉台中学校 (神奈川県横浜市港北区) この学区の他の物件を見る |
| 情報更新日 | 2025年12月11日 | 次回更新日 | 2025年12月25日 |
電話をかける(携帯・PHS可)
0120-033-223
「ホームページを見た」とお伝え下さい。
お問い合わせ番号をお伝えください
RHS-c-29118
| 年利率 | % |
||
|---|---|---|---|
| ボーナス払い | 返済年数 | ||
| 頭金 | 直接入力する | 万円 | |

毎月のご返済額 |
ボーナス(×年2回) |
物件価格3,790万円 |
電話でお問い合わせ
ゼロネクスト
|
電話をかける 0120-033-223 ※「ホームページを見た」とお伝えください。 |
お問い合わせ番号をお伝えください RHS-c-29118 |
|---|
【仲介手数料約131万円が無料になる物件です】
マンション購入時の諸費用を節約する事が可能です。
新規内装リノベーション済の綺麗な室内。食洗機や浴室換気乾燥機など充実設備・安心のアフターサービス保証付きです。