【仲介手数料無料】新宿セントラルハイツプラザ 成約済 東京都新宿区大久保1-1-45の中古マンション||分譲マンション情報|住まいネクスト株式会社

仲介手数料無料の中古マンション専門 ゼロネクストへのお問い合わせ
  • ゼロネクストの不動産売却実績
  • ゼロネクストが仲介手数料無料な理由
  • 住まいネクスト株式会社について
  • ログイン
  • 会員登録
  • ゼロネクストへメールでお問い合わせ
>
>
中古マンション > 新宿区 > 東京メトロ副都心線 >
新宿セントラルハイツプラザ

中古マンション

新宿セントラルハイツプラザ お気に入り
価格 成約済 ローンシミュレーション
所在地 東京都新宿区大久保1-1-45
この地域周辺の物件を見る
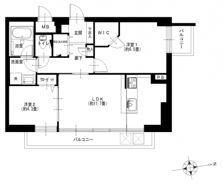
専有面積 53.87u 間取り 2LDK (LDK11.7/洋室6.5/洋室4.3)
交通
東京メトロ副都心線 東新宿/徒歩2分
都営大江戸線 東新宿/徒歩2分
JR山手線 新大久保/徒歩12分
管理費等 16,740円 修繕積立金 14,850円
所在階/階数 9階/地上12階建 築年月 1983年9月築 バルコニー面積 8.25m²
ここがおすすめ

【仲介手数料が無料になる物件です】
マンション購入時の諸費用を節約する事が可能です。
新規内装リノベーションの綺麗な室内。9階角部屋二面バルコニーにつき通風良好。宅配ボックス完備・ペットと暮らせます。


  • 現地外観写真 -
  • 間取り図 -
  • その他共用部 宅配ボックス
  • その他共用部 エレベーター
お問い合わせ、資料請求、見学のお申し込みはこちらから

電話をかける(携帯・PHS可)
0120-033-223
「ホームページを見た」とお伝え下さい。

お問い合わせ番号をお伝えください
RHS-c-29226

内見予約
お問合せ
内見予約・お問い合わせ

セールスポイント

設備・特徴
  • 仲介手数料無料
  • ペット飼育相談可
  • アフターサービス保証付
  • フラット35適合物件
  • CATV
  • 駐輪場
  • 宅配ボックス
  • 夜間オートロック
  • BS対応
  • 角部屋
  • 防犯カメラ
  • エレベーター
  • トランクルーム
  • 洗浄便座付トイレ
  • 室内洗濯機置場
  • 浴室換気乾燥機付
  • TVモニタ付インターホン
  • 食器洗浄乾燥機付
  • フローリング
  • 洗面化粧台
  • 浄水器一体型水栓
  • ウォークインクローゼット
  • 電気温水器
  • 電気温水器(追焚付)
物件のおすすめ
ポイント
*~*:,_,:*~*:,_,:*~*:,_,:*
…╋ 新宿セントラルハイツプラザ ╋…
*~*:,_,:*~*:,_,:*~*:,_,:*

.:*:…╋ 交通アクセス ╋…♪.:*:’ 

東京メトロ副都心線「東新宿」駅徒歩2分
都営大江戸線「東新宿」駅徒歩2分
東京メトロ丸ノ内線「新宿三丁目」駅徒歩10分
東京メトロ副都心線「新宿三丁目」駅徒歩10分
都営新宿線「新宿三丁目」駅徒歩10分
JR山手線「新大久保」駅徒歩12分

.:*:…╋ 特徴・ポイント ╋…♪.:*:’゜

フラット35適合
エレベーター完備
宅配ボックス完備
夜間オートロック
防犯カメラ完備
トランクルーム有
ペット飼育可(規約有)
9階部分・角部屋
収納豊富なWIC有
浄水器付キッチン
食器洗浄乾燥機付
浴室換気乾燥機付
アフターサービス保証

所在地:東京都新宿区大久保1-1-45
専有面積:53.87m2
バルコニー面積:8.25m2
部屋数・間取り:2LDK
築年月:1983年9月
土地権利:所有権
構造:SRC・RC造地下1階付地上12階建
所在階:9階部分
総戸数:50戸
管理会社:大成有楽不動産(株)
管理形態:全部委託(日勤)
管理費:16,740円/月
修繕積立金:14,850円/月
分譲会社:有楽土地(株)
施工会社:大成建設(株)
ペット飼育:可(規約有)
駐輪場:無償
現況:空室
引渡:相談

:*:…╋ 新規内装リノベーション内容 ╋…♪:*

電気温水器交換
システムキッチン交換
ユニットバス交換
洗面台交換
トイレ交換
全室クロス張替
全フローリング張替
全建具交換
CF張替
下足入れ交換
洗濯水栓器具交換
防水パン交換
スイッチパネル設置
ダウンライト設置
照明器具設置
玄関人感センサー設置
インナーサッシ設置
※2026年2月完成

物件概要

採光面 北東 取引態様 仲介
現況 空家 引渡し 相談
総戸数 50戸 構造 SRC造
テラス面積 - 専用庭面積 -
駐車場 なし 駐輪場
建物権利 区分所有 土地権利 所有権の共有
用途地域 商業地域 - - 管理態様 管理形態:委託(通勤)
管理組合:あり
管理会社:大成有楽不動産
小学校区 新宿区立大久保小学校
(東京都新宿区)
この学区の他の物件を見る
中学校区 新宿中学校
(東京都新宿区)
この学区の他の物件を見る
情報更新日 2026年03月30日 次回更新日 2026年04月13日
※各種情報と差異がある場合は現況優先となります
※物件情報の学区情報について
当サイト物件情報に記載されております通学区域(学区)情報は、国土数値情報ダウンロードサービスが提供する小学校区データ【2016年度】及び中学校区データ【2016年度】を元に加工したものですので、記載情報が現在の学区域と異なる場合がございます。
国土数値情報ダウンロードサービスのWEBサイト上で記述通り、データは必ずしも正確とは言えません。また、通学区域(学区)は毎年見直しの対象となりますので、そちらを踏まえ学区情報は参考としてご活用下さい。
お問い合わせ、資料請求、見学のお申し込みはこちらから

電話をかける(携帯・PHS可)
0120-033-223
「ホームページを見た」とお伝え下さい。

お問い合わせ番号をお伝えください
RHS-c-29226

内見予約
お問合せ
内見予約・お問い合わせ

この物件でローンシミュレーションする

年利率
ボーナス払い 返済年数
頭金 直接入力する 万円

毎月のご返済額

ボーナス(×年2回)

物件価格

成約済
※返済金額はあくまでも目安です。

電話でお問い合わせ
ゼロネクスト

電話をかける

0120-033-223

※「ホームページを見た」とお伝えください。
お問い合わせ番号をお伝えください
RHS-c-29226

お問い合わせ

お問い合わせ内容
お問合せ内容必須
【備考欄】
詳細な見学ご希望時間、ご質問、ご希望条件などがございましたらお聞かせ下さい。
(2000文字以内)
お客様情報
お名前必須
連絡先必須 メールアドレス

※ご記入いただいたメールアドレス宛てに、お問合せ内容の確認メールをお送りいたします。
※Yahoo!メールなどのフリーメールをご利用の場合、迷惑メールフォルダに入る場合があります。
 迷惑メールのフォルダ・設定等をご確認下さい。
電話番号
FAX(任意)
※ご入力いただいたお客さまの個人情報は、「個人情報のお取り扱いについて」に基づき適正に取り扱います。
必ずお読みになり、同意の上お問い合わせください。

お気軽にお問い合わせください

0120-033-223
物件番号 RHS-c-29226
※「ホームページを見た」
とお伝え下さい。

PAGE TOP

住まいネクスト株式会社 住まいネクスト株式会社ロゴ

〒143-0016

東京都 大田区大森北1-1-5 YK-16ビル 6F

JR京浜東北線「大森」駅北口出口から徒歩1分

※物件内覧の際は、現地でのお待ち合わせ・解散が可能です。
お電話でのお問い合わせはコチラ 03-6423-0433 営業時間 10:00〜20:30 定休日:水曜日・年末年始・夏季休暇

※ご案内中は電話に出られないこともございます。
   その際は折り返しお電話させて頂きます。