| 価格 | 5,790万円 ![]() |
||||||
|---|---|---|---|---|---|---|---|
| 所在地 | 神奈川県川崎市高津区新作6-7-22
この地域周辺の物件を見る |
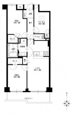
専有面積 | 65.24u | 間取り | 2SLDK (LDK13.1/洋室6.1/洋室6/S4.3) | ||
| 交通 | JR南武線 武蔵新城/徒歩7分
|
管理費等 | 10,390円 | 修繕積立金 | 13,500円 | 所在階/階数 | 3階/地上5階建 | 築年月 | 1994年2月築 | バルコニー面積 | 7.89m² |
電話をかける(携帯・PHS可)
0120-033-223
「ホームページを見た」とお伝え下さい。
お問い合わせ番号をお伝えください
RHS-c-29234
| 設備・特徴 |
|
|---|---|
| 物件のおすすめ ポイント |
*~*:,_,:*~*:,_,:*~*:,_,:* …╋ ロイヤルシャトー武蔵新城 ╋… *~*:,_,:*~*:,_,:*~*:,_,:* .:*:…╋ 交通アクセス ╋…♪.:*:’ JR南武線「武蔵新城」駅徒歩7分 .:*:…╋ 特徴・ポイント ╋…♪.:*:’゜ フラット35適合 新耐震基準マンション エレベーター完備 オートロック完備 宅配ボックス完備 防犯カメラ完備 ペット飼育可(規約有) 3階部分・南向き 浄水器付キッチン 浴室換気乾燥機付 収納豊富なWIC有 アフターサービス保証 所在地:川崎市高津区新作6-7-22 専有面積:65.24m2 バルコニー面積:7.89m2 部屋数・間取り:2SLDK 築年月:1994年2月 土地権利:所有権 構造:RC造地上5階建 所在階:3階部分 総戸数:71戸 管理会社:(株)東急コミュニティー 管理形態:全部委託(日勤) 管理費:10,390円/月 修繕積立金:13,500円/月 分譲会社:大和ハウス工業(株) 施工会社:(株)銭高組 ペット飼育:可(規約有) 駐車場:15,000円〜18,000円/月 バイク置場:3,500円/月 駐輪場:250円/月 現況:空室 引渡:相談 :*:…╋ 新規内装リノベーション内容 ╋…♪:* 給湯器交換 システムキッチン交換 ユニットバス交換 洗面台交換 トイレ交換 全室クロス張替 全フローリング張替 全建具交換 CF張替 下足入れ交換 洗濯水栓器具交換 防水パン交換 スイッチパネル設置 ダウンライト設置 照明器具設置 玄関人感センサー設置 ※2026年2月完成予定 |
| 採光面 | 南 | 取引態様 | 仲介 |
|---|---|---|---|
| 現況 | 空家 | 引渡し | 相談 |
| 総戸数 | 71戸 | 構造 | RC造 |
| テラス面積 | - | 専用庭面積 | - |
| 駐車場 | 有:15,000円/月 | 駐輪場 | 有:250円/月 |
| 建物権利 | 区分所有 | 土地権利 | 所有権の共有 |
| 用途地域 | 第二種中高層住居専用地域 - - | 管理態様 | 管理形態:委託(通勤) 管理組合:あり 管理会社:東急コミュニティー |
| 小学校区 | 川崎市立末長小学校 (神奈川県川崎市高津区) この学区の他の物件を見る |
中学校区 | 橘中学校 (神奈川県川崎市高津区) この学区の他の物件を見る |
| 情報更新日 | 2025年12月19日 | 次回更新日 | 2026年01月02日 |
電話をかける(携帯・PHS可)
0120-033-223
「ホームページを見た」とお伝え下さい。
お問い合わせ番号をお伝えください
RHS-c-29234
| 年利率 | % |
||
|---|---|---|---|
| ボーナス払い | 返済年数 | ||
| 頭金 | 直接入力する | 万円 | |

毎月のご返済額 |
ボーナス(×年2回) |
物件価格5,790万円 |
電話でお問い合わせ
ゼロネクスト
|
電話をかける 0120-033-223 ※「ホームページを見た」とお伝えください。 |
お問い合わせ番号をお伝えください RHS-c-29234 |
|---|
【仲介手数料約197万円が無料になる物件です】
マンション購入時の諸費用を節約する事が可能です。
新規内装リノベーションの綺麗な室内。南向きバルコニー・陽当り良好。オートロック完備・ペットと暮らせます。