| 価格 | 成約済 ![]() |
||||||
|---|---|---|---|---|---|---|---|
| 所在地 | 東京都台東区東上野6-18-18
この地域周辺の物件を見る |
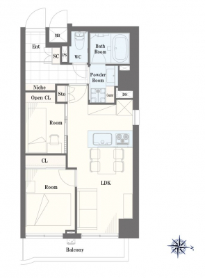
専有面積 | 44.96u | 間取り | 2LDK (-) | ||
| 交通 | 東京メトロ銀座線 稲荷町/徒歩4分
JR山手線 上野/徒歩10分 JR京浜東北・根岸線 上野/徒歩10分 |
管理費等 | 14,300円 | 修繕積立金 | 10,600円 | 所在階/階数 | 2階/地上10階建 | 築年月 | 1989年10月築 | バルコニー面積 | 5.15m² |
電話をかける(携帯・PHS可)
0120-033-223
「ホームページを見た」とお伝え下さい。
お問い合わせ番号をお伝えください
RHS-c-29249
| 設備・特徴 |
|
|---|---|
| 物件のおすすめ ポイント |
*~*:,_,:*~*:,_,:*~*:,_,:* …╋ ルジェンテ・リベル上野稲荷町 ╋… *~*:,_,:*~*:,_,:*~*:,_,:* .:*:…╋ 交通アクセス ╋…♪.:*:’ 東京メトロ銀座線「稲荷町」駅徒歩4分 JR山手線「上野」駅徒歩10分 JR京浜東北線「上野」駅徒歩10分 JR東北本線「上野」駅徒歩10分 JR常磐線「上野」駅徒歩10分 湘南新宿ライン「上野」駅徒歩10分 東京メトロ日比谷線「上野」駅徒歩10分 東京メトロ銀座線「上野」駅徒歩10分 つくばエクスプレス「浅草」駅徒歩10分 .:*:…╋ 特徴・ポイント ╋…♪.:*:’゜ ペット飼育可(規約有) 新耐震基準マンション エレベーター完備 オートロック完備 宅配ボックス完備 2階部分・角部屋 浄水器付キッチン 食器洗浄乾燥機付 浴室換気乾燥機付 大理石貼り玄関廊下 アフターサービス保証 所在地:東京都台東区東上野6-18-18 専有面積:44.96m2 バルコニー面積:5.15m2 部屋数・間取り:2LDK 築年月:平成元年10月 土地権利:所有権 構造:RC造地上10階建 所在階:2階部分 総戸数:46戸 管理会社:(株)東急コミュニティー 管理形態:全部委託(巡回) 管理費:14,300円/月 修繕積立金:10,600円/月 町会費:300円/月 分譲会社:東急リバブル(株) 施工会社:(株)銭高組 ペット飼育:可(規約有) 駐輪場:有 現況:空室 引渡:相談 :*:…╋ 新規内装リノベーション内容 ╋…♪:* システムキッチン新規交換 (食洗機、浄水器一体型水栓付) ユニットバス新規交換 (浴室乾燥機付) 建具新規交換 エアコン新規設置(全室) クロス貼替 フローリング貼替 洗面化粧台新規交換 温水洗浄機能付トイレ交換 ダウンライト新規設置 玄関廊下大理石貼り 給湯器新規交換 (追焚き付) 洗濯パン・水栓新規交換 ルームクリーニング ※2026年1月完成 |
| 採光面 | 東 | 取引態様 | 仲介 |
|---|---|---|---|
| 現況 | 空家 | 引渡し | 相談 |
| 総戸数 | 46戸 | 構造 | RC造 |
| テラス面積 | - | 専用庭面積 | - |
| 駐車場 | - | 駐輪場 | 有 |
| 建物権利 | 区分所有 | 土地権利 | 所有権の共有 |
| 用途地域 | - - - | 管理態様 | 管理形態:委託(巡回) 管理組合:あり 管理会社:東急コミュニティー |
| 小学校区 | 上野小学校 (東京都台東区) この学区の他の物件を見る |
中学校区 | 駒形中学校 (東京都台東区) この学区の他の物件を見る |
| 情報更新日 | 2026年04月13日 | 次回更新日 | 2026年04月27日 |
電話をかける(携帯・PHS可)
0120-033-223
「ホームページを見た」とお伝え下さい。
お問い合わせ番号をお伝えください
RHS-c-29249
| 年利率 | % |
||
|---|---|---|---|
| ボーナス払い | 返済年数 | ||
| 頭金 | 直接入力する | 万円 | |

毎月のご返済額 |
ボーナス(×年2回) |
物件価格成約済 |
電話でお問い合わせ
ゼロネクスト
|
電話をかける 0120-033-223 ※「ホームページを見た」とお伝えください。 |
お問い合わせ番号をお伝えください RHS-c-29249 |
|---|
【仲介手数料が無料になる物件です】
マンション購入時の諸費用を節約する事が可能です。
新規内装リノベーションの綺麗な室内。平成26年共有部改修工事実施済・ペット飼育可・ビッグターミナル「上野駅」徒歩圏です。