| 価格 | 3,399万円値下がり ![]() |
||||||
|---|---|---|---|---|---|---|---|
| 所在地 | 神奈川県川崎市宮前区宮前平1-4-5
この地域周辺の物件を見る |
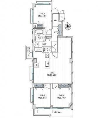
専有面積 | 78.81u | 間取り | 3LDK (LDK17.5/洋室6.7/洋室6.1/洋室5.2) | ||
| 交通 | 東急田園都市線 宮崎台/徒歩7分
|
管理費等 | 11,600円 | 修繕積立金 | 116,000円 | 所在階/階数 | 4階/地上5階建 | 築年月 | 1973年4月築 | バルコニー面積 | 7.65m² |
電話をかける(携帯・PHS可)
0120-033-223
「ホームページを見た」とお伝え下さい。
お問い合わせ番号をお伝えください
RHS-c-29320
| 設備・特徴 |
|
|---|---|
| 物件のおすすめ ポイント |
*~*:,_,:*~*:,_,:*~*:,_,:* …╋ 東急ドエル宮崎台テラスA ╋… *~*:,_,:*~*:,_,:*~*:,_,:* .:*:…╋ 交通アクセス ╋…♪.:*:’ 東急田園都市線「宮崎台」駅徒歩7分 .:*:…╋ 特徴・ポイント ╋…♪.:*:’゜ 4階部分・南西角部屋 陽当り・眺望良好 食器洗浄乾燥機付 浴室換気乾燥機付 各室収納スペース有 アフターサービス保証 長期修繕計画書有 所在地:川崎市宮前区宮前平1-4-5 専有面積:78.81m2 バルコニー面積:7.65m2 部屋数・間取り:3LDK 築年月:昭和48年4月 土地権利:所有権 構造:RC造地上5階建 所在階:4階部分 総戸数:40戸 管理会社:(株)東急コミュニティー 管理形態:全部委託(巡回) 管理費:11,600円/月 修繕積立金:11,600円/月 分譲会社:東急不動産(株) 施工会社:東急建設(株) ペット飼育:不可 事務所利用:不可 駐車場:12,000円/月 バイク置場:有 駐輪場:200円/月 現況:空室 引渡:相談 :*:…╋ 新規内装リノベーション内容 ╋…♪:* ユニットバス 化粧洗面台 トイレ システムキッチン フローリング、クロス張替 フロアタイル(玄関、洗面室、トイレ) 建具交換 カーテンレール交換 網戸張替 洗濯パン 照明器具 ※2025年11月完成済 |
| 採光面 | 南西 | 取引態様 | 仲介 |
|---|---|---|---|
| 現況 | 空家 | 引渡し | 相談 |
| 総戸数 | 40戸 | 構造 | RC造 |
| テラス面積 | - | 専用庭面積 | - |
| 駐車場 | 有:12,000円/月 | 駐輪場 | 有:200円/月 |
| 建物権利 | 区分所有 | 土地権利 | 所有権の共有 |
| 用途地域 | 第一種中高層住居専用地域 - - | 管理態様 | 管理形態:委託(巡回) 管理組合:あり 管理会社:東急コミュニティー |
| 小学校区 | 川崎市立宮前平小学校 (神奈川県川崎市宮前区) この学区の他の物件を見る |
中学校区 | 宮前平中学校 (神奈川県川崎市宮前区) この学区の他の物件を見る |
| 情報更新日 | 2026年03月09日 | 次回更新日 | 2026年03月23日 |
電話をかける(携帯・PHS可)
0120-033-223
「ホームページを見た」とお伝え下さい。
お問い合わせ番号をお伝えください
RHS-c-29320
| 年利率 | % |
||
|---|---|---|---|
| ボーナス払い | 返済年数 | ||
| 頭金 | 直接入力する | 万円 | |

毎月のご返済額 |
ボーナス(×年2回) |
物件価格3,399万円 |
電話でお問い合わせ
ゼロネクスト
|
電話をかける 0120-033-223 ※「ホームページを見た」とお伝えください。 |
お問い合わせ番号をお伝えください RHS-c-29320 |
|---|
【仲介手数料約119万円が無料になる物件です】
マンション購入時の諸費用を節約する事が可能です。
新規内装リノベーション済の綺麗な室内。東急田園都市線「「宮崎台駅」徒歩7分。南西角部屋につき陽当り・眺望良好です。