【仲介手数料無料】秀和第2三田綱町レジデンス 成約済 東京都港区三田2-1-1の中古マンション||分譲マンション情報|住まいネクスト株式会社

仲介手数料無料の中古マンション専門 ゼロネクストへのお問い合わせ
  • ゼロネクストの不動産売却実績
  • ゼロネクストが仲介手数料無料な理由
  • 住まいネクスト株式会社について
  • ログイン
  • 会員登録
  • ゼロネクストへメールでお問い合わせ
>
>
中古マンション > 港区 > 東京メトロ南北線 >
秀和第2三田綱町レジデンス

中古マンション

秀和第2三田綱町レジデンス お気に入り
価格 成約済 ローンシミュレーション
所在地 東京都港区三田2-1-1
この地域周辺の物件を見る
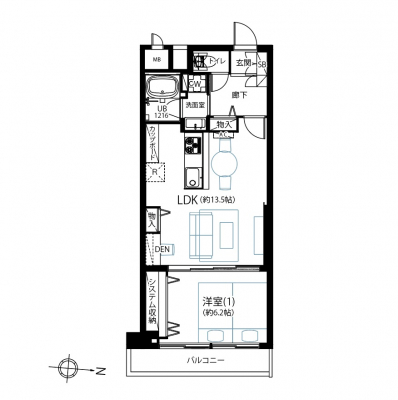
専有面積 48.3u 間取り 1LDK (LDK13.5/洋室6.2)
交通
東京メトロ南北線 麻布十番/徒歩3分
都営大江戸線 麻布十番/徒歩3分
管理費等 11,700円 修繕積立金 9,800円
所在階/階数 7階/地上8階建 築年月 1972年2月築 バルコニー面積 3.88m²
ここがおすすめ

【仲介手数料が無料になる物件です】
マンション購入時の諸費用を節約する事が可能です。
新規内装リノベーション済の綺麗な室内。2022年大規模修繕工事実施済・人気の「麻布十番駅」から徒歩3分の好立地です。


  • 現地外観写真 -
  • 間取り図 -
  • エントランス -
  • エントランス -
  • エントランス -
お問い合わせ、資料請求、見学のお申し込みはこちらから

電話をかける(携帯・PHS可)
0120-033-223
「ホームページを見た」とお伝え下さい。

お問い合わせ番号をお伝えください
RHS-c-29336

内見予約
お問合せ
内見予約・お問い合わせ

セールスポイント

設備・特徴
  • 仲介手数料無料
  • 事務所使用相談可
  • ペット飼育不可
  • アフターサービス保証付
  • 管理体制良好
  • 宅配ボックス
  • オートロック
  • エレベーター
  • 洗浄便座付トイレ
  • 室内洗濯機置場
  • 浴室換気乾燥機付
  • 給湯器(追焚機能付)
  • 食器洗浄乾燥機付
  • フローリング
  • 洗面化粧台
  • エアコン
  • 家具付
物件のおすすめ
ポイント
*~*:,_,:*~*:,_,:*~*:,_*
…╋ 秀和第2三田綱町レジデンス ╋…
*~*:,_,:*~*:,_,:*~*:,_*

.:*:…╋ 交通アクセス ╋…♪.:*:’ 

東京メトロ南北線「麻布十番」駅徒歩3分
都営大江戸線「麻布十番」駅徒歩3分

.:*:…╋ 特徴・ポイント ╋…♪.:*:’゜

7階部分・眺望良好
東京タワーVIEW
ディスポーザー付
食器洗浄乾燥機付
浴室換気乾燥機付
家具・エアコン付
アフターサービス保証
管理良好マンション
オートロック完備
エレベーター完備
宅配ボックス完備
大規模修繕工事実施済
事務所利用可

所在地:東京都港区三田2-1-1
専有面積:48.3m2
バルコニー面積:3.88m2
部屋数・間取り:1LDK
築年月:1972年2月
土地権利:所有権
構造:RC造地上8階建
所在階:7階部分
総戸数:103戸
管理会社:レジデンス・ビルディングマネジメント
管理形態:全部委託(住込)
管理費:11,700円/月
修繕積立金:9,800円/月
施工会社:松井建設(株)
ペット飼育:不可
事務所利用:可
現況:空室
引渡:相談

:*:…╋ 新規内装リノベーション内容 ╋…♪:*

床、クロス
洗面、トイレ
キッチン
ユニットバス
建具
エアコン設置(1台)
※2025年12月12日完成済

物件概要

採光面 取引態様 仲介
現況 空家 引渡し 相談
総戸数 103戸 構造 RC造
テラス面積 - 専用庭面積 -
駐車場 なし 駐輪場 -
建物権利 区分所有 土地権利 所有権の共有
用途地域 第一種中高層住居専用地域 - - 管理態様 管理形態:委託(常駐)
管理組合:あり
管理会社:レジデンス・ビルディングマネジメント
小学校区 港区立赤羽小学校
(東京都港区)
この学区の他の物件を見る
中学校区 三田中学校
(東京都港区)
この学区の他の物件を見る
情報更新日 2026年04月04日 次回更新日 2026年04月18日
※各種情報と差異がある場合は現況優先となります
※物件情報の学区情報について
当サイト物件情報に記載されております通学区域(学区)情報は、国土数値情報ダウンロードサービスが提供する小学校区データ【2016年度】及び中学校区データ【2016年度】を元に加工したものですので、記載情報が現在の学区域と異なる場合がございます。
国土数値情報ダウンロードサービスのWEBサイト上で記述通り、データは必ずしも正確とは言えません。また、通学区域(学区)は毎年見直しの対象となりますので、そちらを踏まえ学区情報は参考としてご活用下さい。
お問い合わせ、資料請求、見学のお申し込みはこちらから

電話をかける(携帯・PHS可)
0120-033-223
「ホームページを見た」とお伝え下さい。

お問い合わせ番号をお伝えください
RHS-c-29336

内見予約
お問合せ
内見予約・お問い合わせ

この物件でローンシミュレーションする

年利率
ボーナス払い 返済年数
頭金 直接入力する 万円

毎月のご返済額

ボーナス(×年2回)

物件価格

成約済
※返済金額はあくまでも目安です。

電話でお問い合わせ
ゼロネクスト

電話をかける

0120-033-223

※「ホームページを見た」とお伝えください。
お問い合わせ番号をお伝えください
RHS-c-29336

お問い合わせ

お問い合わせ内容
お問合せ内容必須
【備考欄】
詳細な見学ご希望時間、ご質問、ご希望条件などがございましたらお聞かせ下さい。
(2000文字以内)
お客様情報
お名前必須
連絡先必須 メールアドレス

※ご記入いただいたメールアドレス宛てに、お問合せ内容の確認メールをお送りいたします。
※Yahoo!メールなどのフリーメールをご利用の場合、迷惑メールフォルダに入る場合があります。
 迷惑メールのフォルダ・設定等をご確認下さい。
電話番号
FAX(任意)
※ご入力いただいたお客さまの個人情報は、「個人情報のお取り扱いについて」に基づき適正に取り扱います。
必ずお読みになり、同意の上お問い合わせください。

お気軽にお問い合わせください

0120-033-223
物件番号 RHS-c-29336
※「ホームページを見た」
とお伝え下さい。

PAGE TOP

住まいネクスト株式会社 住まいネクスト株式会社ロゴ

〒143-0016

東京都 大田区大森北1-1-5 YK-16ビル 6F

JR京浜東北線「大森」駅北口出口から徒歩1分

※物件内覧の際は、現地でのお待ち合わせ・解散が可能です。
お電話でのお問い合わせはコチラ 03-6423-0433 営業時間 10:00〜20:30 定休日:水曜日・年末年始・夏季休暇

※ご案内中は電話に出られないこともございます。
   その際は折り返しお電話させて頂きます。