| 価格 | 7,980万円 ![]() |
||||||
|---|---|---|---|---|---|---|---|
| 所在地 | 神奈川県横浜市西区岡野2-11-26
この地域周辺の物件を見る |
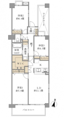
専有面積 | 77.5u | 間取り | 3LDK (LDK11.1/洋室7.9/洋室6.4/洋室4.5) | ||
| 交通 | 相鉄本線 平沼橋/徒歩7分
JR東海道本線 横浜/徒歩13分 JR京浜東北・根岸線 横浜/徒歩13分 |
管理費等 | 15,330円 | 修繕積立金 | 23,250円 | 所在階/階数 | 5階/地上7階建 | 築年月 | 2000年2月築 | バルコニー面積 | 8.88m² |
電話をかける(携帯・PHS可)
0120-033-223
「ホームページを見た」とお伝え下さい。
お問い合わせ番号をお伝えください
RHS-c-29345
| 設備・特徴 |
|
|---|---|
| 物件のおすすめ ポイント |
*~*:,_,:*~*:,_,:*~*:,_,:* …╋ ナイスパークステイツ横濱岡野公園 ╋… *~*:,_,:*~*:,_,:*~*:,_,:* .:*:…╋ 交通アクセス ╋…♪.:*:’ 相鉄本線「平沼橋」駅徒歩7分 JR京浜東北線「横浜」駅徒歩13分 JR東海道線「横浜」駅徒歩13分 JR横浜線「横浜」駅徒歩13分 JR横須賀線「横浜」駅徒歩13分 東急東横線「横浜」駅徒歩13分 相鉄本線「横浜」駅徒歩13分 京急本線「横浜」駅徒歩13分 みなとみらい線「横浜」駅徒歩13分 横浜市営地下鉄「横浜」駅徒歩13分 .:*:…╋ 特徴・ポイント ╋…♪.:*:’゜ 無償敷地内駐車場付き エレベーター完備 オートロック完備 宅配ボックス完備 5階部分・南向き 陽当り・眺望良好 収納豊富なWIC有 浄水器付キッチン 食器洗浄乾燥機付 浴室換気乾燥機付 アフターサービス保証 所在地:横浜市西区岡野2-11-26 専有面積:77.50m2 バルコニー面積:8.88m2 部屋数・間取り:3LDK 築年月:2000年2月 土地権利:所有権 構造:RC造地上7階建 所在階:5階部分 総戸数:146戸 管理会社:ナイスコミュニティー(株) 管理形態:全部委託(日勤) 管理費:15,330円/月 修繕積立金:23,250円/月 分譲会社:ナイス日榮(株)・栄泉不動産(株) 施工会社:三菱建設(株) ペット飼育:不可 駐車場:無償 現況:空室 引渡:相談 :*:…╋ 新規内装リノベーション内容 ╋…♪:* 食洗機・浄水器付キッチン交換 洗面台交換 防水パン交換 ユニットバス交換(保温浴槽) トイレ交換 フローリング張替 建具交換 ダウンライト交換・新設 ハウスクリーニング ※2025年8月完成済 |
| 採光面 | 南 | 取引態様 | 仲介 |
|---|---|---|---|
| 現況 | 空家 | 引渡し | 相談 |
| 総戸数 | 146戸 | 構造 | RC造 |
| テラス面積 | - | 専用庭面積 | - |
| 駐車場 | 有 | 駐輪場 | - |
| 建物権利 | 区分所有 | 土地権利 | 所有権の共有 |
| 用途地域 | 準工業地域 - - | 管理態様 | 管理形態:委託(通勤) 管理組合:あり 管理会社:ナイスコミュニティー |
| 小学校区 | 横浜市立平沼小学校 (神奈川県横浜市西区) この学区の他の物件を見る |
中学校区 | 岡野中学校 (神奈川県横浜市西区) この学区の他の物件を見る |
| 情報更新日 | 2025年12月29日 | 次回更新日 | 2026年01月12日 |
電話をかける(携帯・PHS可)
0120-033-223
「ホームページを見た」とお伝え下さい。
お問い合わせ番号をお伝えください
RHS-c-29345
| 年利率 | % |
||
|---|---|---|---|
| ボーナス払い | 返済年数 | ||
| 頭金 | 直接入力する | 万円 | |

毎月のご返済額 |
ボーナス(×年2回) |
物件価格7,980万円 |
電話でお問い合わせ
ゼロネクスト
|
電話をかける 0120-033-223 ※「ホームページを見た」とお伝えください。 |
お問い合わせ番号をお伝えください RHS-c-29345 |
|---|
【仲介手数料約269万円が無料になる物件です】
マンション購入時の諸費用を節約する事が可能です。
新規内装リノベーション済の綺麗な室内。無償敷地内駐車場付き・ビッグターミナル「横浜駅」徒歩圏です。