| 価格 | 3,990万円 ![]() |
||||||
|---|---|---|---|---|---|---|---|
| 所在地 | 神奈川県川崎市川崎区元木2-4-5
この地域周辺の物件を見る |
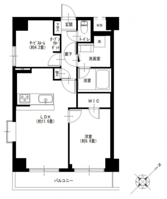
専有面積 | 50.16u | 間取り | 1SLDK (LDK11.6/洋室5.6/S4.2) | ||
| 交通 | JR南武線 八丁畷/徒歩5分
京急本線 八丁畷/徒歩5分 JR東海道本線 川崎/徒歩15分 |
管理費等 | 14,400円 | 修繕積立金 | 9,630円 | 所在階/階数 | 7階/地上13階建 | 築年月 | 1995年2月築 | バルコニー面積 | 5.98m² |
電話をかける(携帯・PHS可)
0120-033-223
「ホームページを見た」とお伝え下さい。
お問い合わせ番号をお伝えください
RHS-c-29379
| 設備・特徴 |
|
|---|---|
| 物件のおすすめ ポイント |
*~*:,_,:*~*:,_,:*~*:,_,:* …╋ ダイアパレス川崎元木町 ╋… *~*:,_,:*~*:,_,:*~*:,_,:* .:*:…╋ 交通アクセス ╋…♪.:*:’ JR南武線「八丁畷」駅徒歩5分 京急本線「八丁畷」駅徒歩5分 JR東海道線「川崎」駅徒歩15分 JR京浜東北線「川崎」駅徒歩15分 JR南武線「川崎」駅徒歩15分 .:*:…╋ 特徴・ポイント ╋…♪.:*:’゜ フラット35適合 新耐震基準マンション エレベーター完備 オートロック完備 宅配ボックス完備 防犯カメラ完備 南東×南西角部屋 陽当り・眺望良好 収納豊富なWIC有 浄水器付キッチン 浴室換気乾燥機付 アフターサービス保証 所在地:川崎市川崎区元木2-4-5 専有面積:50.16m2 バルコニー面積:5.98m2 部屋数・間取り:1SLDK 築年月:1995年2月 土地権利:所有権 構造:SRC・S造地上13階建 所在階:7階部分 総戸数:85戸 管理会社:(株)東急コミュニティー 管理形態:全部委託(日勤) 管理費:14,400円/月 修繕積立金:9,630円/月 分譲会社:ダイア建設(株) 施工会社:大和建設(株) ペット飼育:不可 駐輪場:無償 現況:空室 引渡:相談 :*:…╋ 新規内装リノベーション内容 ╋…♪:* 給湯器交換 システムキッチン交換 ユニットバス交換 洗面台交換 トイレ交換 全室クロス張替 全フローリング張替 全建具交換 CF張替 下足入れ交換 洗濯水栓器具交換 防水パン交換 スイッチパネル設置 ダウンライト設置 照明器具設置 玄関人感センサー設置 ※2025年11月完成済 |
| 採光面 | 東南 | 取引態様 | 仲介 |
|---|---|---|---|
| 現況 | 空家 | 引渡し | 相談 |
| 総戸数 | 85戸 | 構造 | SRC造 |
| テラス面積 | - | 専用庭面積 | - |
| 駐車場 | なし | 駐輪場 | 有 |
| 建物権利 | 区分所有 | 土地権利 | 所有権の共有 |
| 用途地域 | 商業地域 準工業地域 - | 管理態様 | 管理形態:委託(通勤) 管理組合:あり 管理会社:東急コミュニティー |
| 小学校区 | 川崎市立川崎小学校 (神奈川県川崎市川崎区) この学区の他の物件を見る |
中学校区 | 川崎中学校 (神奈川県川崎市川崎区) この学区の他の物件を見る |
| 情報更新日 | 2025年12月30日 | 次回更新日 | 2026年01月13日 |
電話をかける(携帯・PHS可)
0120-033-223
「ホームページを見た」とお伝え下さい。
お問い合わせ番号をお伝えください
RHS-c-29379
| 年利率 | % |
||
|---|---|---|---|
| ボーナス払い | 返済年数 | ||
| 頭金 | 直接入力する | 万円 | |

毎月のご返済額 |
ボーナス(×年2回) |
物件価格3,990万円 |
電話でお問い合わせ
ゼロネクスト
|
電話をかける 0120-033-223 ※「ホームページを見た」とお伝えください。 |
お問い合わせ番号をお伝えください RHS-c-29379 |
|---|
【仲介手数料約138万円が無料になる物件です】
マンション購入時の諸費用を節約する事が可能です。
新規内装リノベーション済の綺麗な室内。オートロック・宅配ボックス完備。南東×南西角部屋につき陽当り・眺望良好です。