| 価格 | 2,890万円値下がり ![]() |
||||||
|---|---|---|---|---|---|---|---|
| 所在地 | 神奈川県川崎市川崎区四谷上町22-4
この地域周辺の物件を見る |
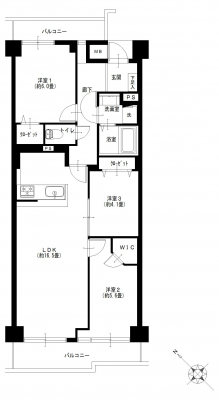
専有面積 | 70.95u | 間取り | 3LDK (LDK16.5/洋室6/洋室5.6/洋室4.1) | ||
| 交通 | 京急大師線 東門前/徒歩17分
JR東海道本線 川崎/四谷上町 バス15分 停歩6分 JR京浜東北・根岸線 川崎/四谷上町 バス15分 停歩6分 |
管理費等 | 7,630円 | 修繕積立金 | 7,630円 | 所在階/階数 | 2階/地上7階建 | 築年月 | 1983年1月築 | バルコニー面積 | 10.08m² |
電話をかける(携帯・PHS可)
0120-033-223
「ホームページを見た」とお伝え下さい。
お問い合わせ番号をお伝えください
RHS-c-29380
| 設備・特徴 |
|
|---|---|
| 物件のおすすめ ポイント |
*~*:,_,:*~*:,_,:*~*:,_,:* …╋ 川崎ロイヤルマンション ╋… *~*:,_,:*~*:,_,:*~*:,_,:* .:*:…╋ 交通アクセス ╋…♪.:*:’ 京急大師線「東門前」駅徒歩17分 JR東海道線「川崎」駅バス15分 「四谷上町」バス停下車徒歩6分 JR京浜東北線「川崎」駅バス15分 「四谷上町」バス停下車徒歩6分 JR南武線「川崎」駅バス15分 「四谷上町」バス停下車徒歩6分 .:*:…╋ 特徴・ポイント ╋…♪.:*:’゜ フラット35適合 ビッグコミュニティ エレベーター完備 宅配ボックス完備 防犯カメラ完備 大規模修繕工事実施済 2階部分・南西向き 収納豊富なWIC有 浄水器付キッチン 浴室換気乾燥機付 アフターサービス保証 所在地:川崎市川崎区四谷上町22-4 専有面積:70.95m2 バルコニー面積:10.08m2 部屋数・間取り:3LDK 築年月:1983年1月 土地権利:所有権 構造:RC造地上7階建 所在階:2階部分 総戸数:121戸 管理会社:(株)カシワバラ・デイズ 管理形態:全部委託(日勤) 管理費:7,630円/月 修繕積立金:7,630円/月 分譲会社:川鉄物産(株) 施工会社:(株)大林組 駐車場:12,200円〜13,500円/月 バイク置場:500円〜1,000円/月 駐輪場:200円〜300円/月 現況:空室 引渡:相談 :*:…╋ 新規内装リノベーション内容 ╋…♪:* システムキッチン交換 ユニットバス交換 洗面台交換 トイレ交換 全室クロス張替 全フローリング張替 全建具交換 CF張替 下足入れ交換 洗濯水栓器具交換 防水パン交換 スイッチパネル設置 ダウンライト設置 照明器具設置 インターフォン交換 玄関人感センサー設置 ※2026年2月完成 |
| 採光面 | 南西 | 取引態様 | 仲介 |
|---|---|---|---|
| 現況 | 空家 | 引渡し | 相談 |
| 総戸数 | 121戸 | 構造 | RC造 |
| テラス面積 | - | 専用庭面積 | - |
| 駐車場 | 有:12,200円/月 | 駐輪場 | 有:200円/月 |
| 建物権利 | 区分所有 | 土地権利 | 所有権の共有 |
| 用途地域 | 第二種住居地域 - - | 管理態様 | 管理形態:委託(通勤) 管理組合:あり 管理会社:カシワバラ・デイズ |
| 小学校区 | 川崎市立四谷小学校 (神奈川県川崎市川崎区) この学区の他の物件を見る |
中学校区 | 南大師中学校 (神奈川県川崎市川崎区) この学区の他の物件を見る |
| 情報更新日 | 2026年02月28日 | 次回更新日 | 2026年03月14日 |
電話をかける(携帯・PHS可)
0120-033-223
「ホームページを見た」とお伝え下さい。
お問い合わせ番号をお伝えください
RHS-c-29380
| 年利率 | % |
||
|---|---|---|---|
| ボーナス払い | 返済年数 | ||
| 頭金 | 直接入力する | 万円 | |

毎月のご返済額 |
ボーナス(×年2回) |
物件価格2,890万円 |
電話でお問い合わせ
ゼロネクスト
|
電話をかける 0120-033-223 ※「ホームページを見た」とお伝えください。 |
お問い合わせ番号をお伝えください RHS-c-29380 |
|---|
【仲介手数料約102万円が無料になる物件です】
マンション購入時の諸費用を節約する事が可能です。
新規内装リノベーションの綺麗な室内。2025年大規模修繕工事実施済・総戸数121戸のビッグコミュニティです。