| 価格 | 成約済 ![]() |
||||||
|---|---|---|---|---|---|---|---|
| 所在地 | 東京都渋谷区代々木4-26-10
この地域周辺の物件を見る |
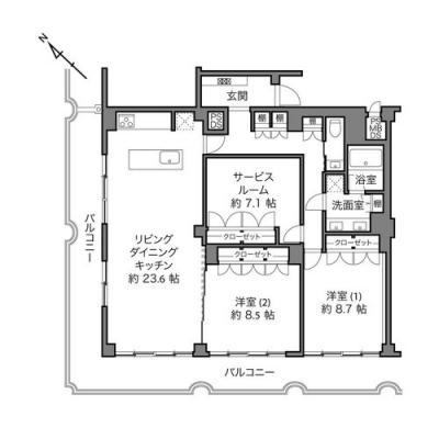
専有面積 | 114.32u | 間取り | 2SLDK (LDK23.6/洋室8.7/洋室8.5/S7.1) | ||
| 交通 | 京王線 初台/徒歩6分
小田急小田原線 参宮橋/徒歩8分 JR山手線 新宿/徒歩12分 |
管理費等 | 22,100円 | 修繕積立金 | 29,010円 | 所在階/階数 | 5階/地上6階建 | 築年月 | 1974年4月築 | バルコニー面積 | - |
電話をかける(携帯・PHS可)
0120-033-223
「ホームページを見た」とお伝え下さい。
お問い合わせ番号をお伝えください
RHS-c-29410
| 設備・特徴 |
|
|---|---|
| 物件のおすすめ ポイント |
*~*:,_,:*~*:,_,:*~* …╋ 代々木ハイライズ ╋… *~*:,_,:*~*:,_,:*~* .:*:…╋ 交通アクセス ╋…♪.:*:’ 京王線「初台」駅徒歩6分 小田急線「参宮橋」駅徒歩8分 JR山手線「新宿」駅徒歩12分 JR埼京線「新宿」駅徒歩12分 JR中央総武線「新宿」駅徒歩12分 湘南新宿ライン「新宿」駅徒歩12分 小田急線「新宿」駅徒歩12分 京王線「新宿」駅徒歩12分 東京メトロ丸の内線「新宿」駅徒歩12分 都営新宿線「新宿」駅徒歩12分 都営大江戸線「新宿」駅徒歩12分 .:*:…╋ 特徴・ポイント ╋…♪.:*:’゜ 管理良好マンション 長期修繕計画書有 エレベーター完備 宅配ボックス完備 防犯カメラ完備 オートロック完備 ペット飼育可(規約有) 5階部分・角部屋 各室収納スペース 浄水器付キッチン 食器洗浄乾燥機付 浴室換気乾燥機付 所在地:東京都渋谷区代々木4-26-10 専有面積:114.32m2 バルコニー面積:不明 部屋数・間取り:2SLDK 築年月:1974年4月 土地権利:所有権 構造:RC造地上6階建 所在階:5階部分 総戸数:24戸 管理会社:(株)日鉄コミュニティ 管理形態:全部委託(日勤) 管理費:22,100円/月 修繕積立金:29,010円/月 分譲会社:興和不動産(株) 施工会社:(株)大林組 ペット飼育:可(規約有) 事務所利用:不可 駐車場:18,000円〜30,000円/月 バイク置場:5,000円/月 駐輪場:2,400円/年 現況:空室 引渡:相談 :*:…╋ 新規内装リノベーション内容 ╋…♪:* システムキッチン交換 ユニットバス交換 トイレ交換 洗面化粧台交換 フローリング張替 クロス張替 ハウスクリーニング等 ※2025年9月完成済 |
| 採光面 | 南西 | 取引態様 | 仲介 |
|---|---|---|---|
| 現況 | 空家 | 引渡し | 相談 |
| 総戸数 | 24戸 | 構造 | RC造 |
| テラス面積 | - | 専用庭面積 | - |
| 駐車場 | 有:18,000円/月 | 駐輪場 | 有:200円/月 |
| 建物権利 | 区分所有 | 土地権利 | 所有権の共有 |
| 用途地域 | 第二種中高層住居専用地域 - - | 管理態様 | 管理形態:委託(通勤) 管理組合:あり 管理会社:日鉄コミュニティ |
| 小学校区 | 渋谷区立代々木山谷小学校 (東京都渋谷区) この学区の他の物件を見る |
中学校区 | 代々木中学校 (東京都渋谷区) この学区の他の物件を見る |
| 情報更新日 | 2026年03月29日 | 次回更新日 | 2026年04月12日 |
電話をかける(携帯・PHS可)
0120-033-223
「ホームページを見た」とお伝え下さい。
お問い合わせ番号をお伝えください
RHS-c-29410
| 年利率 | % |
||
|---|---|---|---|
| ボーナス払い | 返済年数 | ||
| 頭金 | 直接入力する | 万円 | |

毎月のご返済額 |
ボーナス(×年2回) |
物件価格成約済 |
電話でお問い合わせ
ゼロネクスト
|
電話をかける 0120-033-223 ※「ホームページを見た」とお伝えください。 |
お問い合わせ番号をお伝えください RHS-c-29410 |
|---|
【仲介手数料が無料になる物件です】
マンション購入時の諸費用を節約する事が可能です。
新規内装リノベーション済の綺麗な室内。JR山手線など「新宿駅」徒歩圏・宅配ボックス完備・ペットと暮らせます。