| 価格 | 3,590万円値下がり ![]() |
||||||
|---|---|---|---|---|---|---|---|
| 所在地 | 神奈川県横浜市旭区善部町96-2
この地域周辺の物件を見る |
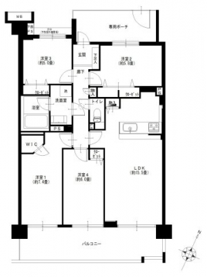
専有面積 | 85.71u | 間取り | 4LDK (LDK15.5/洋室7.4/洋室6/洋室5.8/洋室5) | ||
| 交通 | 相鉄いずみ野線 南万騎が原/徒歩13分
相鉄本線 希望ヶ丘/徒歩18分 |
管理費等 | 17,100円 | 修繕積立金 | 20,510円 | 所在階/階数 | 4階/地上7階 地下1階建 | 築年月 | 2003年8月築 | バルコニー面積 | 16.4m² |
電話をかける(携帯・PHS可)
0120-033-223
「ホームページを見た」とお伝え下さい。
お問い合わせ番号をお伝えください
RHS-c-30233
| 設備・特徴 |
|
|---|---|
| 物件のおすすめ ポイント |
*~*:,_,:*~*:,_,:*~*:,_,:* …╋ ランドシティ南万騎が原弐番館 ╋… *~*:,_,:*~*:,_,:*~*:,_,:* .:*:…╋ 交通アクセス ╋…♪.:*:’ 相鉄いずみ野線「南万騎が原」駅徒歩13分 相鉄本線「希望ヶ丘」駅徒歩18分 .:*:…╋ 特徴・ポイント ╋…♪.:*:’゜ フラット35適合 新耐震基準マンション エレベーター完備 オートロック完備 防犯カメラ完備 ペット飼育可(規約有) 4階部分・南東向き 収納豊富なWIC有 浄水器付キッチン 浴室換気乾燥機付 床暖房完備(LD部) アフターサービス保証 所在地:横浜市旭区善部町96-2 専有面積:85.71m2 バルコニー面積:16.40m2 部屋数・間取り:4LDK 築年月:2003年8月 土地権利:所有権 構造:RC造地下1階付地上7階建 所在階:4階部分 総戸数:64戸 管理会社:住友不動産建物サービス(株) 管理形態:全部委託(日勤) 管理費:17,100円/月 修繕積立金:20,510円/月 分譲会社:(株)ゼクス 施工会社:(株)長谷工コーポレーション ペット飼育:可(規約有) 駐車場:1住戸1台専用使用権付(無償) バイク置場:1,000円/月 駐輪場:200円/月 現況:空室 引渡:相談 :*:…╋ 新規内装リノベーション内容 ╋…♪:* 給湯器交換 システムキッチン交換 ユニットバス交換 洗面台交換 トイレ交換 全室クロス張替 全フローリング張替 全建具交換 CF張替 下足入れ交換 洗濯水栓器具交換 防水パン交換 スイッチパネル設置 ダウンライト設置 照明器具設置 玄関人感センサー設置 ※2026年1月完成済 |
| 採光面 | 東南 | 取引態様 | 仲介 |
|---|---|---|---|
| 現況 | 空家 | 引渡し | 相談 |
| 総戸数 | 64戸 | 構造 | RC造 |
| テラス面積 | - | 専用庭面積 | - |
| 駐車場 | 有 | 駐輪場 | 有:200円/月 |
| 建物権利 | 区分所有 | 土地権利 | 所有権の共有 |
| 用途地域 | 第一種低層住居専用地域 第一種住居地域 - | 管理態様 | 管理形態:委託(通勤) 管理組合:あり 管理会社:住友不動産建物サービス |
| 小学校区 | 横浜市立さちが丘小学校 (神奈川県横浜市旭区) この学区の他の物件を見る |
中学校区 | 万騎が原中学校 (神奈川県横浜市旭区) この学区の他の物件を見る |
| 情報更新日 | 2026年04月13日 | 次回更新日 | 2026年04月27日 |
電話をかける(携帯・PHS可)
0120-033-223
「ホームページを見た」とお伝え下さい。
お問い合わせ番号をお伝えください
RHS-c-30233
| 年利率 | % |
||
|---|---|---|---|
| ボーナス払い | 返済年数 | ||
| 頭金 | 直接入力する | 万円 | |

毎月のご返済額 |
ボーナス(×年2回) |
物件価格3,590万円 |
電話でお問い合わせ
ゼロネクスト
|
電話をかける 0120-033-223 ※「ホームページを見た」とお伝えください。 |
お問い合わせ番号をお伝えください RHS-c-30233 |
|---|
【仲介手数料約125万円が無料になる物件です】
マンション購入時の諸費用を節約する事が可能です。
新規内装リノベーション済の綺麗な室内。「南万騎が原駅」「希望ヶ丘駅」が徒歩圏・オートロック完備・ペットと暮らせます。