| 価格 | 6,999万円 ![]() |
||||||
|---|---|---|---|---|---|---|---|
| 所在地 | 東京都江東区南砂2-27-8
この地域周辺の物件を見る |
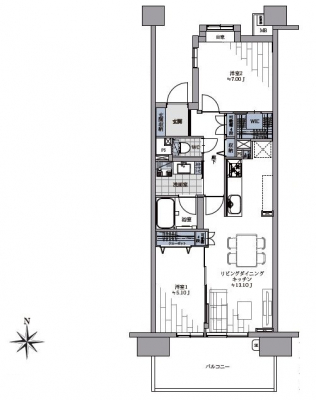
専有面積 | 60.13u | 間取り | 2LDK (LDK13.1/洋室7/洋室5.1) | ||
| 交通 | 東京メトロ東西線 東陽町/徒歩13分
|
管理費等 | 6,300円 | 修繕積立金 | 22,600円 | 所在階/階数 | 10階/地上15階建 | 築年月 | 2006年2月築 | バルコニー面積 | 11.2m² |
電話をかける(携帯・PHS可)
0120-033-223
「ホームページを見た」とお伝え下さい。
お問い合わせ番号をお伝えください
RHS-c-30241
| 設備・特徴 |
|
|---|---|
| 物件のおすすめ ポイント |
*~*:,_,:*~*:,_,:*~*:,_,:* …╋ コスモ東陽町シティフォルム ╋… *~*:,_,:*~*:,_,:*~*:,_,:* .:*:…╋ 交通アクセス ╋…♪.:*:’ 東京メトロ東西線「東陽町」駅徒歩13分 .:*:…╋ 特徴・ポイント ╋…♪.:*:’゜ ペット飼育可(規約有) エレベーター完備 オートロック完備 宅配ボックス完備 敷地内ゴミ置き場有 10階部分・南向き 陽当り・眺望良好 収納豊富なWIC有 浄水器付キッチン 食器洗浄乾燥機付 浴室換気乾燥機付 所在地:東京都江東区南砂2-27-8 専有面積:60.13m2 バルコニー面積:11.20m2 部屋数・間取り:2LDK 築年月:平成18年2月 土地権利:所有権 構造:RC造地上15階建 所在階:10階部分 総戸数:59戸 管理会社:大和ライフネクスト(株) 管理形態:全部委託(日勤) 管理費:6,300円/月 修繕積立金:22,600円/月 CATV使用料:550円/月 町会費:300円/月 分譲会社:(株)リクルートコスモス 施工会社:木内建設(株) ペット飼育:可(規約有) 駐車場:18,000円〜21,000円/月 バイク置場:6,000円〜8,400円/年 駐輪場:1,200円〜2,400円/年 現況:空室 引渡:相談 :*:…╋ 新規内装リフォーム内容 ╋…♪:* フローリング新規貼替 ユニットバス新規交換 洗面化粧台新規交換 トイレ新規交換 システムキッチン新規交換 壁・天井クロス新規交換 建具・玄関収納新規交換 給湯器新規交換 洗濯水栓・防水パン新規交換 ※2026年6月完成予定 |
| 採光面 | 南 | 取引態様 | 仲介 |
|---|---|---|---|
| 現況 | 空家 | 引渡し | 相談 |
| 総戸数 | 59戸 | 構造 | RC造 |
| テラス面積 | - | 専用庭面積 | - |
| 駐車場 | 有:18,000円/月 | 駐輪場 | 有:100円/月 |
| 建物権利 | 区分所有 | 土地権利 | 所有権の共有 |
| 用途地域 | - - - | 管理態様 | 管理形態:委託(通勤) 管理組合:あり 管理会社:大和ライフネクスト |
| 小学校区 | 江東区立第四砂町小学校 (東京都江東区) この学区の他の物件を見る |
中学校区 | 第二南砂中学校 (東京都江東区) この学区の他の物件を見る |
| 情報更新日 | 2026年03月07日 | 次回更新日 | 2026年03月21日 |
電話をかける(携帯・PHS可)
0120-033-223
「ホームページを見た」とお伝え下さい。
お問い合わせ番号をお伝えください
RHS-c-30241
| 年利率 | % |
||
|---|---|---|---|
| ボーナス払い | 返済年数 | ||
| 頭金 | 直接入力する | 万円 | |

毎月のご返済額 |
ボーナス(×年2回) |
物件価格6,999万円 |
電話でお問い合わせ
ゼロネクスト
|
電話をかける 0120-033-223 ※「ホームページを見た」とお伝えください。 |
お問い合わせ番号をお伝えください RHS-c-30241 |
|---|
【仲介手数料約237万円が無料になる物件です】
マンション購入時の諸費用を節約する事が可能です。
新規内装リフォームの綺麗な室内。ペット飼育可・「トピレックプラザ」「アリオ北砂」徒歩圏の充実した住環境です。