| 価格 | 6,780万円 ![]() |
||||||
|---|---|---|---|---|---|---|---|
| 所在地 | 神奈川県横浜市港北区新横浜1-14-8
この地域周辺の物件を見る |
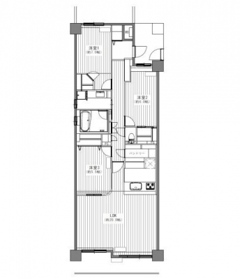
専有面積 | 95.55u | 間取り | 3LDK (LDK20.8/洋室7/洋室6/洋室5.5) | ||
| 交通 | JR横浜線 新横浜/徒歩12分
横浜市営地下鉄ブルーライン 新横浜/徒歩12分 東急新横浜線 新横浜/徒歩12分 |
管理費等 | 14,300円 | 修繕積立金 | 25,100円 | 所在階/階数 | 7階/地上11階建 | 築年月 | 2000年7月築 | バルコニー面積 | 21.3m² |
電話をかける(携帯・PHS可)
0120-033-223
「ホームページを見た」とお伝え下さい。
お問い合わせ番号をお伝えください
RHS-c-30330
| 設備・特徴 |
|
|---|---|
| 物件のおすすめ ポイント |
*~*:,_,:*~*:,_,:*~* …╋ コスモ新横浜 ╋… *~*:,_,:*~*:,_,:*~* .:*:…╋ 交通アクセス ╋…♪.:*:’ JR横浜線「新横浜」駅徒歩12分 東海道新幹線「新横浜」駅徒歩12分 東急新横浜線「新横浜」駅徒歩12分 横浜市営地下鉄「新横浜」駅徒歩12分 .:*:…╋ 特徴・ポイント ╋…♪.:*:’゜ 新耐震基準マンション エレベーター完備 オートロック完備 宅配ボックス完備 7階部分・南東向き 陽当り・通風良好 収納豊富なWIC有 浄水器付キッチン 食器洗浄乾燥機付 浴室換気乾燥機付 アフターサービス保証 所在地:横浜市港北区新横浜1-14-8 専有面積:95.55m2 バルコニー面積:21.3m2 部屋数・間取り:3LDK 築年月:平成12年7月 土地権利:所有権 構造:RC造地上11階建 所在階:7階部分 総戸数:80戸 管理会社:大和ライフネクスト(株) 管理形態:全部委託(巡回) 管理費:14,300円/月 修繕積立金:25,100円/月 分譲会社:(株)リクルートコスモス 施工会社:木内建設(株) ペット飼育:不可 駐車場:18,000円〜20,000円/月 バイク置場:1,000円/月 駐輪場:1,500円〜2,500円/年 現況:空室 引渡:相談 :*:…╋ 新規内装リノベーション内容 ╋…♪:* システムキッチン新規交換 (食洗機、浄水器一体型) ユニットバス新規交換 (追焚、浴室乾燥機能付) 建具新規交換 エアコン新規設置 クロス張替 フローリング張替 洗面化粧台新規交換 ウォシュレットトイレ新規交換 給湯器新規交換 洗濯パン、水栓新規交換 照明器具新規設置 ハウスクリーニング実施 ※2025年12月完成済 |
| 採光面 | 東南 | 取引態様 | 仲介 |
|---|---|---|---|
| 現況 | 空家 | 引渡し | 相談 |
| 総戸数 | 80戸 | 構造 | RC造 |
| テラス面積 | - | 専用庭面積 | - |
| 駐車場 | 有:18,000円/月 | 駐輪場 | 有:125円/月 |
| 建物権利 | 区分所有 | 土地権利 | 所有権の共有 |
| 用途地域 | - - - | 管理態様 | 管理形態:委託(巡回) 管理組合:あり 管理会社:大和ライフネクスト |
| 小学校区 | 横浜市立城郷小学校 (神奈川県横浜市港北区) この学区の他の物件を見る |
中学校区 | 篠原中学校 (神奈川県横浜市港北区) この学区の他の物件を見る |
| 情報更新日 | 2026年03月13日 | 次回更新日 | 2026年03月27日 |
電話をかける(携帯・PHS可)
0120-033-223
「ホームページを見た」とお伝え下さい。
お問い合わせ番号をお伝えください
RHS-c-30330
| 年利率 | % |
||
|---|---|---|---|
| ボーナス払い | 返済年数 | ||
| 頭金 | 直接入力する | 万円 | |

毎月のご返済額 |
ボーナス(×年2回) |
物件価格6,780万円 |
電話でお問い合わせ
ゼロネクスト
|
電話をかける 0120-033-223 ※「ホームページを見た」とお伝えください。 |
お問い合わせ番号をお伝えください RHS-c-30330 |
|---|
【仲介手数料約230万円が無料になる物件です】
マンション購入時の諸費用を節約する事が可能です。
新規内装リノベーション済の綺麗な室内。近隣には横浜アリーナ、新横浜公園やMEGAドンキホーテなど生活施設が点在しています。