| 価格 | 8,290万円 ![]() |
||||||
|---|---|---|---|---|---|---|---|
| 所在地 | 神奈川県川崎市中原区上小田中3-29-2
この地域周辺の物件を見る |
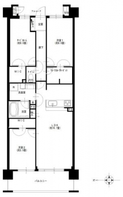
専有面積 | 84.44u | 間取り | 2SLDK (LDK16.7/洋室6.6/洋室5.9/S6.6) | ||
| 交通 | JR南武線 武蔵新城/徒歩5分
|
管理費等 | 16,970円 | 修繕積立金 | 23,470円 | 所在階/階数 | 6階/地上10階 地下1階建 | 築年月 | 2005年2月築 | バルコニー面積 | 11.4m² |
電話をかける(携帯・PHS可)
0120-033-223
「ホームページを見た」とお伝え下さい。
お問い合わせ番号をお伝えください
RHS-c-30387
| 設備・特徴 |
|
|---|---|
| 物件のおすすめ ポイント |
*~*:,_,:*~*:,_,:*~*:,_,:* …╋ ザ・クレストシティパークコート ╋… *~*:,_,:*~*:,_,:*~*:,_,:* .:*:…╋ 交通アクセス ╋…♪.:*:’ JR南武線「武蔵新城」駅徒歩5分 .:*:…╋ 特徴・ポイント ╋…♪.:*:’゜ フラット35適合 新耐震基準マンション エレベーター完備 オートロック完備 宅配ボックス完備 防犯カメラ完備 ペット飼育可(規約有) 6階部分・眺望良好 収納豊富なWIC有 各室収納スペース 浄水器付キッチン 食器洗浄乾燥機付 浴室換気乾燥機付 アフターサービス保証 所在地:川崎市中原区上小田中3-29-2 専有面積:84.44m2 バルコニー面積:11.40m2 部屋数・間取り:2SLDK 築年月:2005年2月 土地権利:所有権 構造:RC造地下1階付地上10階建 所在階:6階部分 総戸数:638戸 管理会社:大和ライフネクスト(株) 管理形態:全部委託(常駐) 管理費:16,970円/月 修繕積立金:23,470円/月 分譲会社:(株)ゴールドクレスト 施工会社:五洋建設(株) ペット飼育:可(規約有) 駐車場:7,000円〜20,000円/月 バイク置場:2,000円〜3,000円/月 駐輪場:150円〜250円/月 現況:空室 引渡:相談 :*:…╋ 新規内装リノベーション内容 ╋…♪:* システムキッチン交換 ユニットバス交換 洗面台交換 トイレ交換 全室クロス張替 全フローリング張替 全建具交換 CF張替 下足入れ交換 洗濯水栓器具交換 防水パン交換 スイッチパネル設置 ダウンライト設置 照明器具設置 玄関人感センサー設置 ※2026年4月完成予定 |
| 採光面 | 西 | 取引態様 | 仲介 |
|---|---|---|---|
| 現況 | 空家 | 引渡し | 相談 |
| 総戸数 | 638戸 | 構造 | RC造 |
| テラス面積 | - | 専用庭面積 | - |
| 駐車場 | 有:7,000円/月 | 駐輪場 | 有:150円/月 |
| 建物権利 | 区分所有 | 土地権利 | 所有権の共有 |
| 用途地域 | 第一種中高層住居専用地域 - - | 管理態様 | 管理形態:委託(常駐) 管理組合:あり 管理会社:大和ライフネクスト |
| 小学校区 | 川崎市立大谷戸小学校 (神奈川県川崎市中原区) この学区の他の物件を見る |
中学校区 | 西中原中学校 (神奈川県川崎市中原区) この学区の他の物件を見る |
| 情報更新日 | 2026年03月18日 | 次回更新日 | 2026年04月01日 |
電話をかける(携帯・PHS可)
0120-033-223
「ホームページを見た」とお伝え下さい。
お問い合わせ番号をお伝えください
RHS-c-30387
| 年利率 | % |
||
|---|---|---|---|
| ボーナス払い | 返済年数 | ||
| 頭金 | 直接入力する | 万円 | |

毎月のご返済額 |
ボーナス(×年2回) |
物件価格8,290万円 |
電話でお問い合わせ
ゼロネクスト
|
電話をかける 0120-033-223 ※「ホームページを見た」とお伝えください。 |
お問い合わせ番号をお伝えください RHS-c-30387 |
|---|
【仲介手数料約280万円が無料になる物件です】
マンション購入時の諸費用を節約する事が可能です。
新規内装リノベーションの綺麗な室内。6階部分西向き・眺望良好。総戸数638戸のビッグコミュニティ・ペットと暮らせます。