| 価格 | 2,598万円 ![]() |
||||||
|---|---|---|---|---|---|---|---|
| 所在地 | 神奈川県横浜市戸塚区上矢部町39-2
この地域周辺の物件を見る |
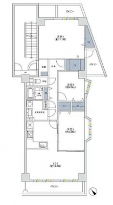
専有面積 | 88.21u | 間取り | 3LDK (LDK16/洋室11.1/洋室6.4/洋室4.9) | ||
| 交通 | JR東海道本線 戸塚/徒歩21分
JR横須賀線 戸塚/徒歩21分 湘南新宿ライン宇須 戸塚/徒歩21分 |
管理費等 | 12,000円 | 修繕積立金 | 14,930円 | 所在階/階数 | 5階/地上6階建 | 築年月 | 1986年6月築 | バルコニー面積 | 16.35m² |
電話をかける(携帯・PHS可)
0120-033-223
「ホームページを見た」とお伝え下さい。
お問い合わせ番号をお伝えください
RHS-c-30491
| 設備・特徴 |
|
|---|---|
| 物件のおすすめ ポイント |
*~*:,_,:*~*:,_,:*~*:,_,:* …╋ ストークマンション戸塚 ╋… *~*:,_,:*~*:,_,:*~*:,_,:* .:*:…╋ 交通アクセス ╋…♪.:*:’ JR東海道線「戸塚」駅徒歩21分 JR横須賀線「戸塚」駅徒歩21分 湘南新宿ライン「戸塚」駅徒歩21分 横浜市営地下鉄「戸塚」駅徒歩21分 .:*:…╋ 特徴・ポイント ╋…♪.:*:’゜ 南西×南東角部屋 陽当り・眺望良好 浄水器付キッチン 食器洗浄乾燥機付 エアコン設置(1台) エレベーター完備 ペット飼育可(規約有) 所在地:横浜市戸塚区上矢部町39-2 専有面積:88.21m2 バルコニー面積:16.35m2 部屋数・間取り:3LDK 築年月:昭和61年6月 土地権利:所有権 構造:RC造地上6階建 所在階:5階部分 総戸数:105戸 管理会社:(株)大京アステージ 管理形態:全部委託(日勤) 管理費:12,000円/月 修繕積立金:14,930円/月 分譲会社:第一不動産(株) 施工会社:(株)熊谷組 ペット飼育:可(規約有) 駐車場:14,000円/月 バイク置場:300円〜700円/月 駐輪場:200円/月 現況:空室 引渡:相談 :*:…╋ 新規内装リノベーション内容 ╋…♪:* 玄関人感センサー設置 玄関収納交換 ユニットバス交換 洗面化粧台交換 トイレ交換 システムキッチン交換 クロス張替 建具交換 照明器具設置 フローリング張替 フロアタイル張替 リビングエアコン設置 給湯器交換 ハウスクリーニング ※2026年2月完成済 |
| 採光面 | 南西 | 取引態様 | 仲介 |
|---|---|---|---|
| 現況 | 空家 | 引渡し | 相談 |
| 総戸数 | 105戸 | 構造 | RC造 |
| テラス面積 | - | 専用庭面積 | - |
| 駐車場 | 有:14,000円/月 | 駐輪場 | 有:200円/月 |
| 建物権利 | 区分所有 | 土地権利 | 所有権の共有 |
| 用途地域 | 第一種住居地域 - - | 管理態様 | 管理形態:委託(通勤) 管理組合:あり 管理会社:大京アステージ |
| 小学校区 | 横浜市立秋葉小学校 (神奈川県横浜市戸塚区) この学区の他の物件を見る |
中学校区 | 秋葉中学校 (神奈川県横浜市戸塚区) この学区の他の物件を見る |
| 情報更新日 | 2026年03月31日 | 次回更新日 | 2026年04月14日 |
電話をかける(携帯・PHS可)
0120-033-223
「ホームページを見た」とお伝え下さい。
お問い合わせ番号をお伝えください
RHS-c-30491
| 年利率 | % |
||
|---|---|---|---|
| ボーナス払い | 返済年数 | ||
| 頭金 | 直接入力する | 万円 | |

毎月のご返済額 |
ボーナス(×年2回) |
物件価格2,598万円 |
電話でお問い合わせ
ゼロネクスト
|
電話をかける 0120-033-223 ※「ホームページを見た」とお伝えください。 |
お問い合わせ番号をお伝えください RHS-c-30491 |
|---|
【仲介手数料約92万円が無料になる物件です】
マンション購入時の諸費用を節約する事が可能です。
新規内装リノベーション済の綺麗な室内。南西×南東角部屋につき陽当り・眺望良好。エレベーター完備・ペットと暮らせます。