| 価格 | 成約済 ![]() |
||||||
|---|---|---|---|---|---|---|---|
| 所在地 | 東京都渋谷区神宮前6-25-2
この地域周辺の物件を見る |
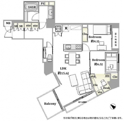
専有面積 | 61.82u | 間取り | 2LDK (LDK15.6/洋室6.5/洋室4.1) | ||
| 交通 | 東京メトロ千代田線 明治神宮前/徒歩6分
JR山手線 原宿/徒歩8分 東京メトロ銀座線 表参道/徒歩11分 |
管理費等 | 16,790円 | 修繕積立金 | 15,100円 | 所在階/階数 | 8階/地上11階建 | 築年月 | 1997年4月築 | バルコニー面積 | 3.96m² |
電話をかける(携帯・PHS可)
0120-033-223
「ホームページを見た」とお伝え下さい。
お問い合わせ番号をお伝えください
RHS-c-8086
| 設備・特徴 |
|
|---|---|
| 物件のおすすめ ポイント |
*~*:,_,:*~*:,_,:*~*:,_, …╋ エクセル原宿グレイスコート ╋… *~*:,_,:*~*:,_,:*~*:,_, .:*:…╋ 交通アクセス ╋…♪.:*:’ 東京メトロ千代田線「明治神宮前」駅徒歩6分 東京メトロ副都心線「明治神宮前」駅徒歩6分 JR山手線「原宿」駅徒歩8分 東京メトロ千代田線「表参道」駅徒歩11分 東京メトロ半蔵門線「表参道」駅徒歩11分 東京メトロ銀座線「表参道」駅徒歩11分 JR山手線「渋谷」駅徒歩13分 JR埼京線「渋谷」駅徒歩13分 東急東横線「渋谷」駅徒13分 東急田園都市線「渋谷」駅徒歩13分 東京メトロ半蔵門「渋谷」駅徒歩13分 東京メトロ銀座線「渋谷」駅徒歩13分 京王井の頭線「渋谷」駅徒歩13分 .:*:…╋ 特徴・ポイント ╋…♪.:*:’゜ 8階部分・南向き 陽当り・眺望良好 浄水器付キッチン 広々15.6帖LDK 各室収納スペース アフターサービス保証 新耐震基準マンション フラット35適合 事務所利用可 オートロック完備 エレベーター完備 宅配ボックス完備 所在地:東京都渋谷区神宮前6-25-2 専有面積:61.82m2 バルコニー面積:3.96m2 部屋数・間取り:2LDK 築年月:平成9年4月 土地権利:所有権 構造:SRC造地上11階建 所在階:8階部分 総戸数:50戸 管理会社:近鉄住宅管理(株) 管理形態:全部委託(日勤) 管理費:16,790円/月 修繕積立金:15,100円/月 分譲会社:近鉄不動産(株) 施工会社:戸田建設(株) ペット飼育:不可 事務所利用:可(規約有) 駐車場:40,000円/月 駐輪場:300円/月 現況:空室 引渡:相談 :*:…╋ 新規内装リノベーション内容 ╋…♪:* システムキッチン交換 (浄水機能付) ユニットバス交換 トイレ交換 洗面化粧台交換 フローリング貼替 建具・玄関収納交換 クロス全貼替 フロアタイル張替 照明器具新規取付 ダウンライト新規取付 ハウスクリーニング ※2022年1月完成 .:*:…╋ Life Information ╋…♪.:*:’ ラフォーレ原宿 約500m ファミリーマート 約210m 神宮前六郵便局 約350m 神宮通公園 約360m 区立神南小学校 約1000m 区立原宿外苑中学校 約1100m |
| 採光面 | 南 | 取引態様 | 仲介 |
|---|---|---|---|
| 現況 | 空家 | 引渡し | 相談 |
| 総戸数 | 50戸 | 構造 | SRC造 |
| テラス面積 | - | 専用庭面積 | - |
| 駐車場 | 有:40,000円/月 | 駐輪場 | 有:300円/月 |
| 建物権利 | 区分所有 | 土地権利 | 所有権の共有 |
| 用途地域 | 第二種住居地域 - - | 管理態様 | 管理形態:委託(通勤) 管理組合:あり 管理会社:近鉄住宅管理 |
| 小学校区 | 渋谷区立神南小学校 (東京都渋谷区) この学区の他の物件を見る |
中学校区 | 原宿外苑中学校 (東京都渋谷区) この学区の他の物件を見る |
| 情報更新日 | 2022年04月03日 | 次回更新日 | 2022年04月17日 |
電話をかける(携帯・PHS可)
0120-033-223
「ホームページを見た」とお伝え下さい。
お問い合わせ番号をお伝えください
RHS-c-8086
| 年利率 | % |
||
|---|---|---|---|
| ボーナス払い | 返済年数 | ||
| 頭金 | 直接入力する | 万円 | |

毎月のご返済額 |
ボーナス(×年2回) |
物件価格成約済 |
電話でお問い合わせ
ゼロネクスト
|
電話をかける 0120-033-223 ※「ホームページを見た」とお伝えください。 |
お問い合わせ番号をお伝えください RHS-c-8086 |
|---|
【仲介手数料が無料になる物件です】
マンション購入時の諸費用を節約する事が可能です。
新規内装リノベーションの綺麗な室内。事務所利用可。原宿・表参道・渋谷が生活エリアの好立地です。